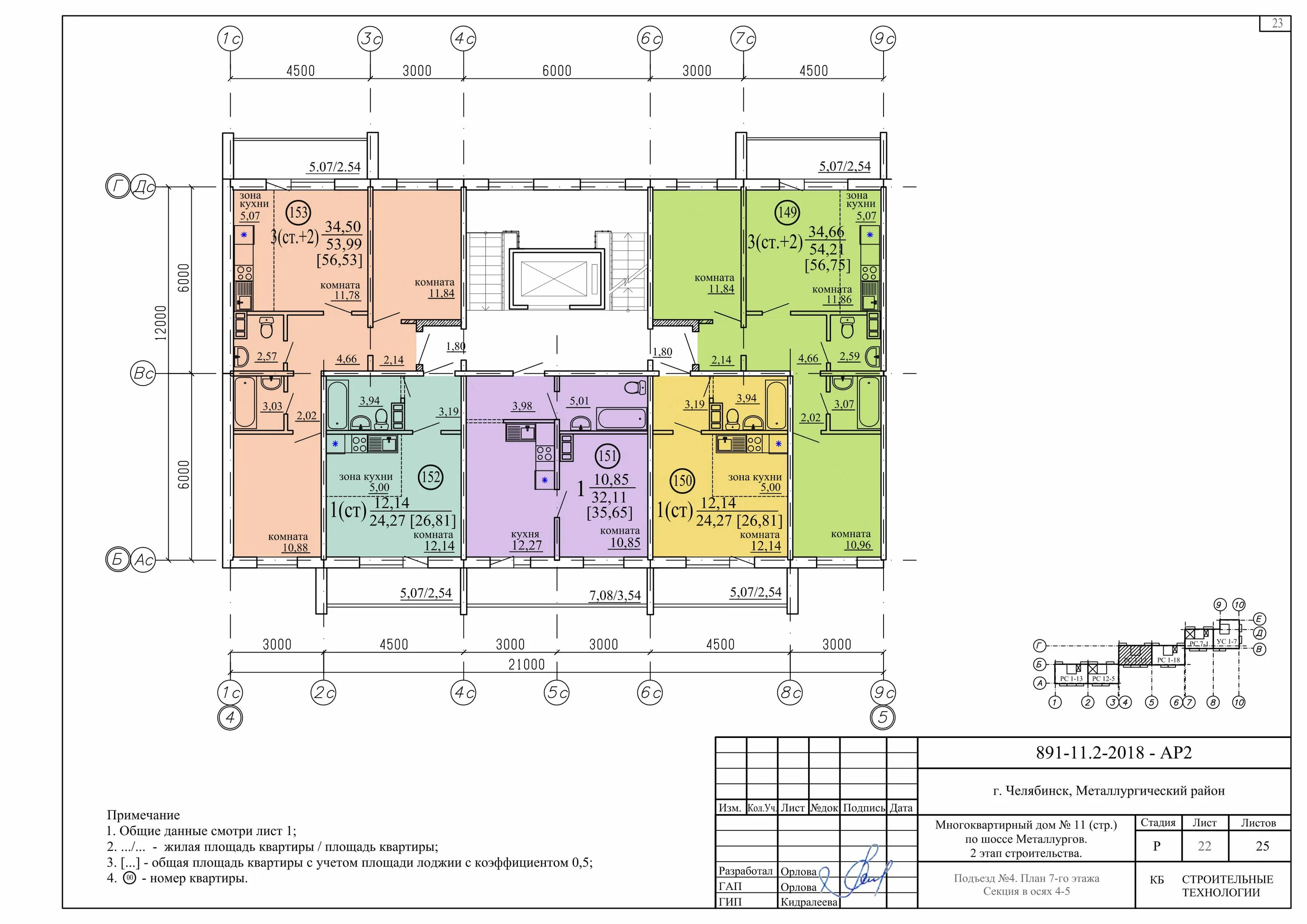
Сталеваров 11