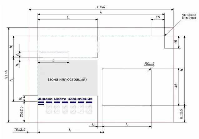
Стандартный конверт