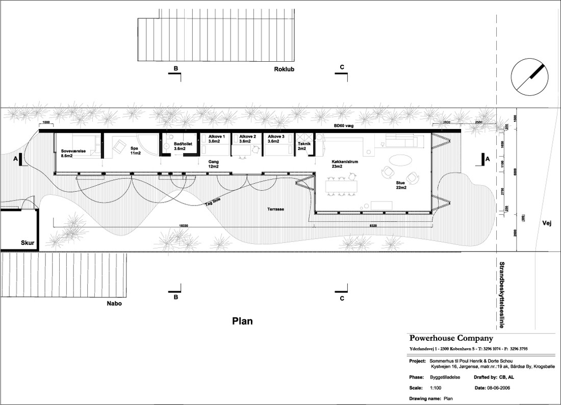
Stay to long plan