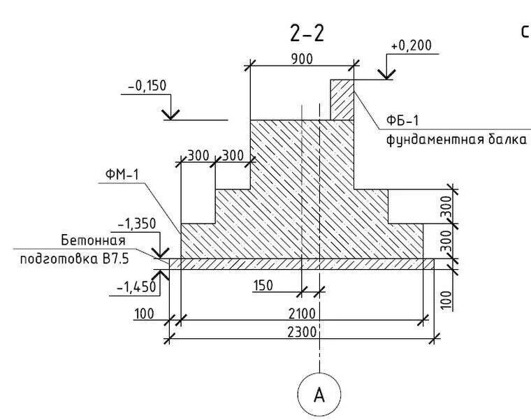
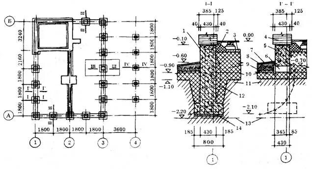
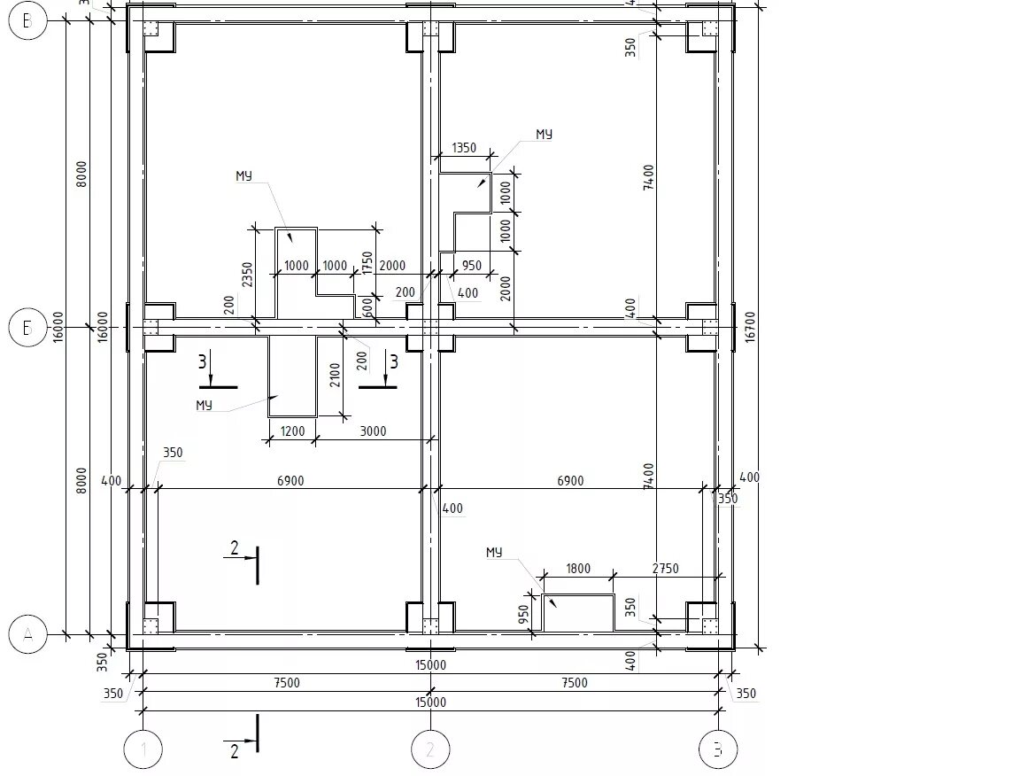
Столбчатый фундамент чертеж