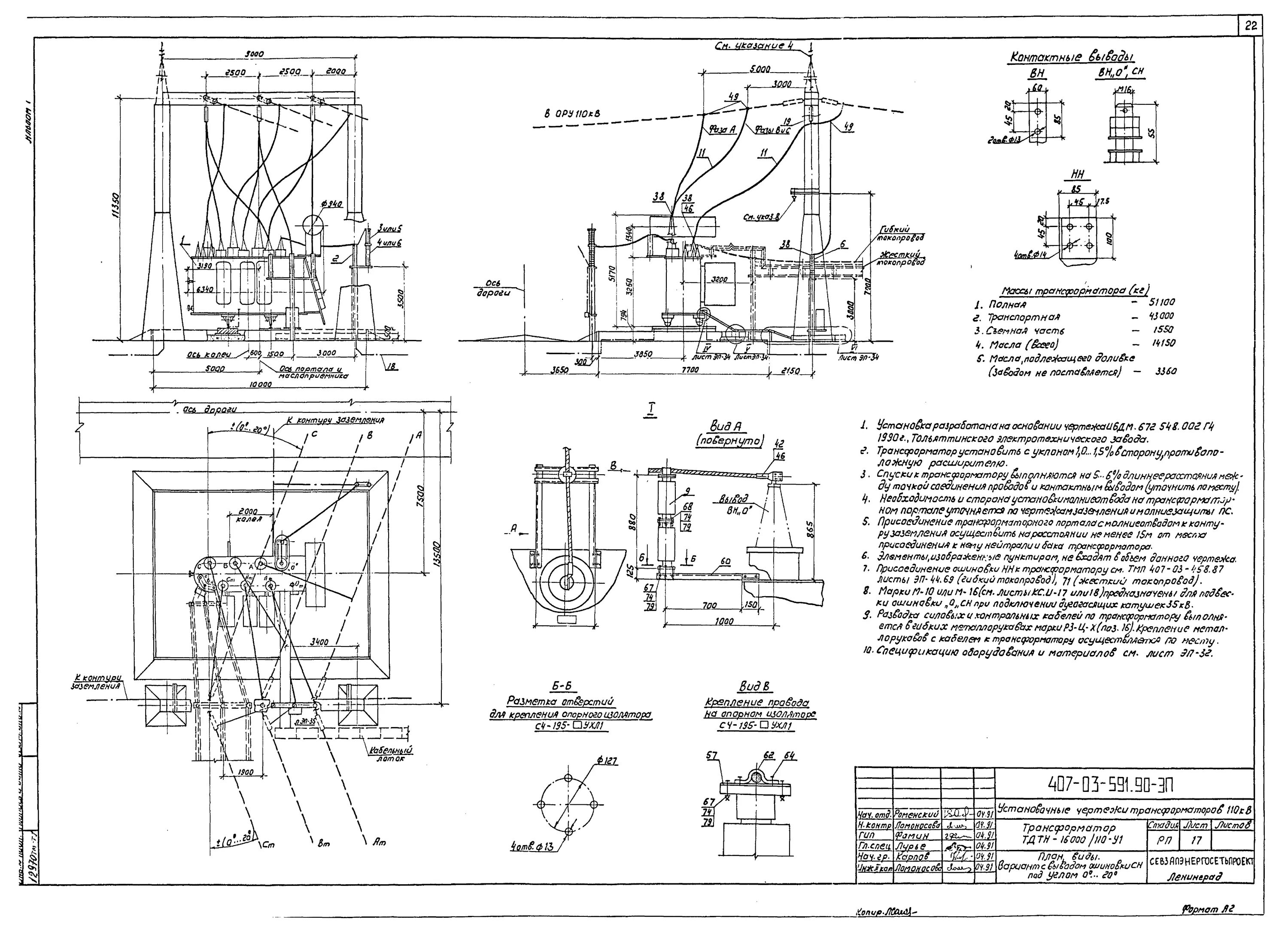
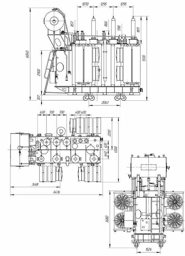
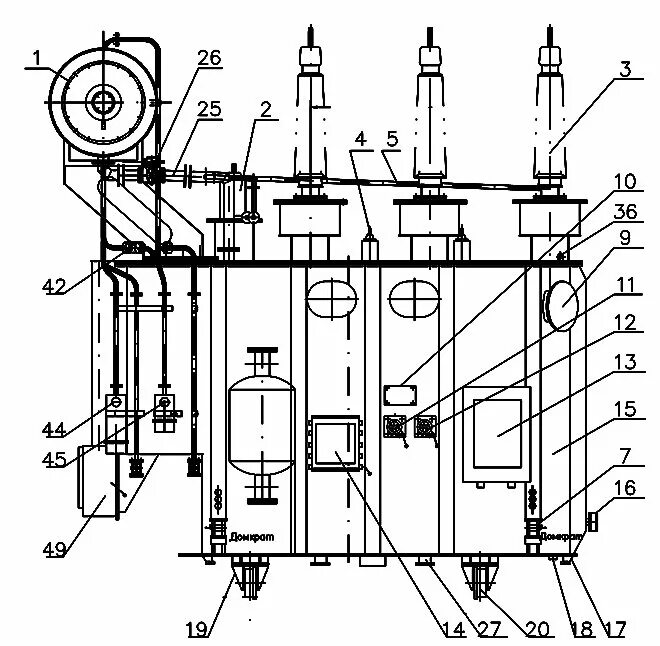
Тдн расшифровка трансформатора