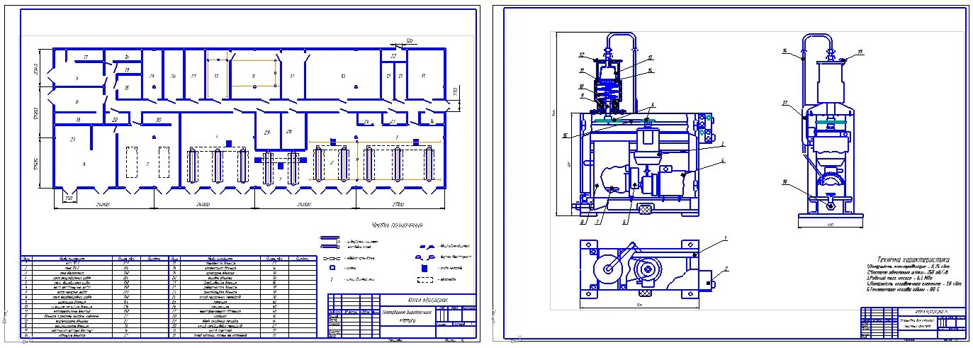
Технологическое оборудование атп