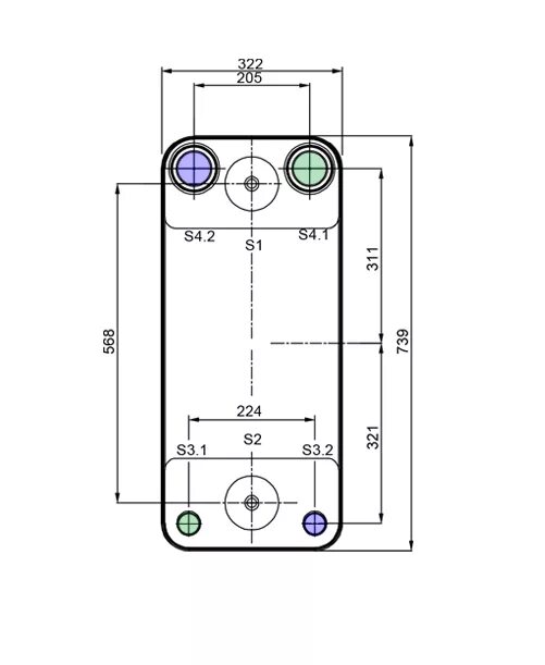
Теплообменник ас