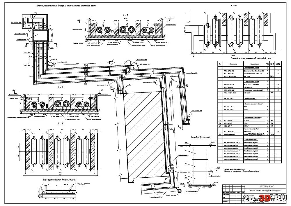
Теплотрасса монолитная