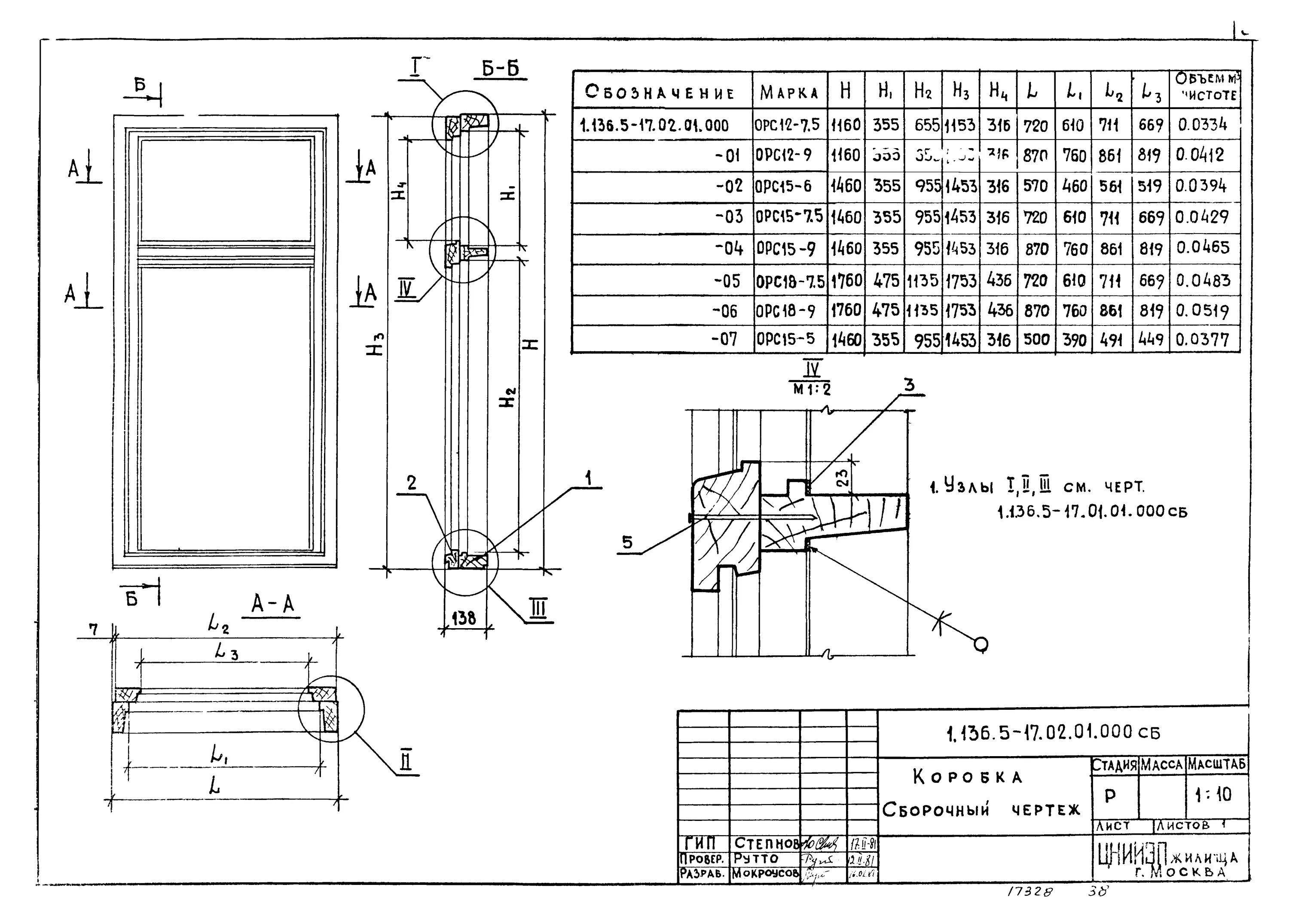
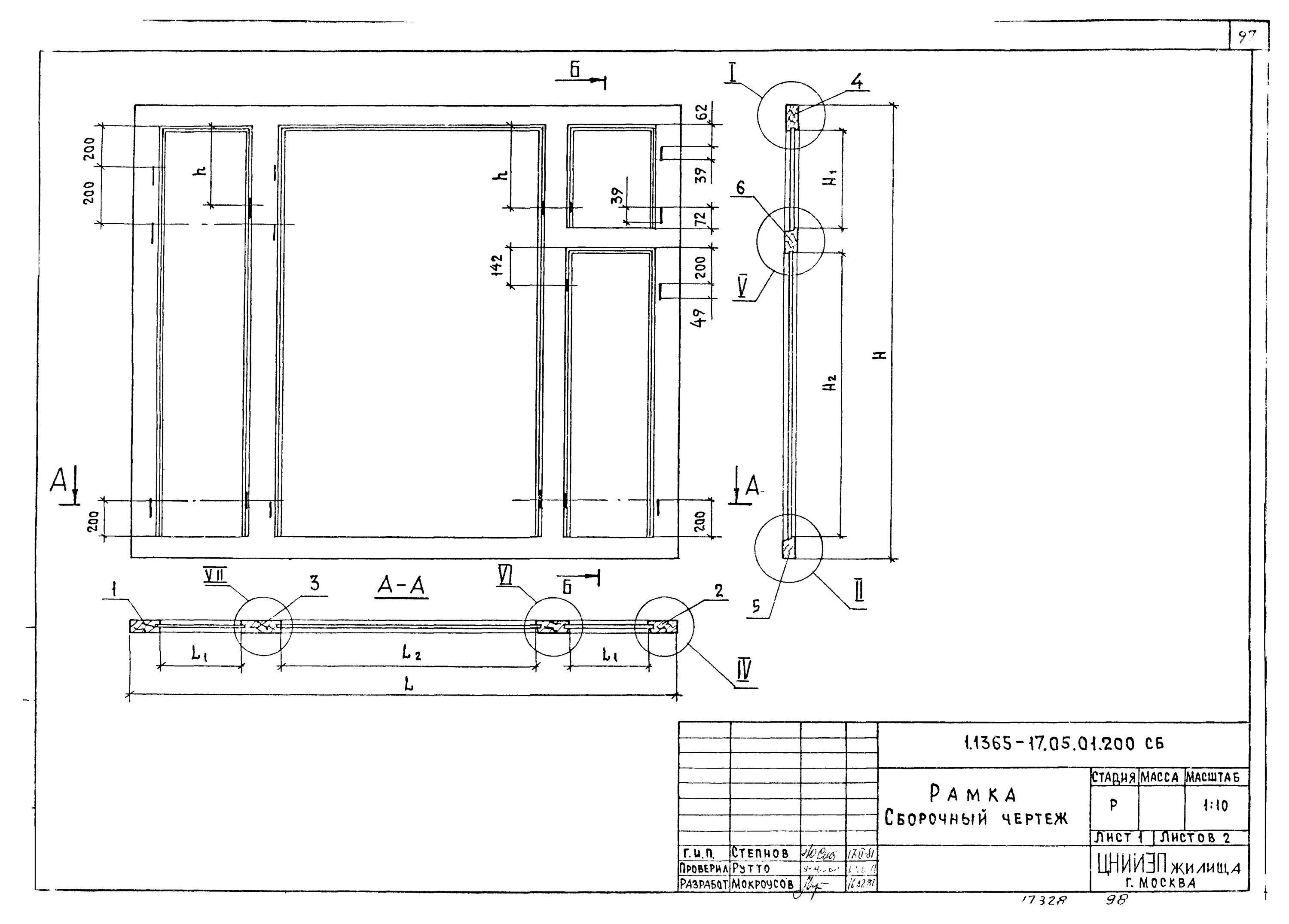
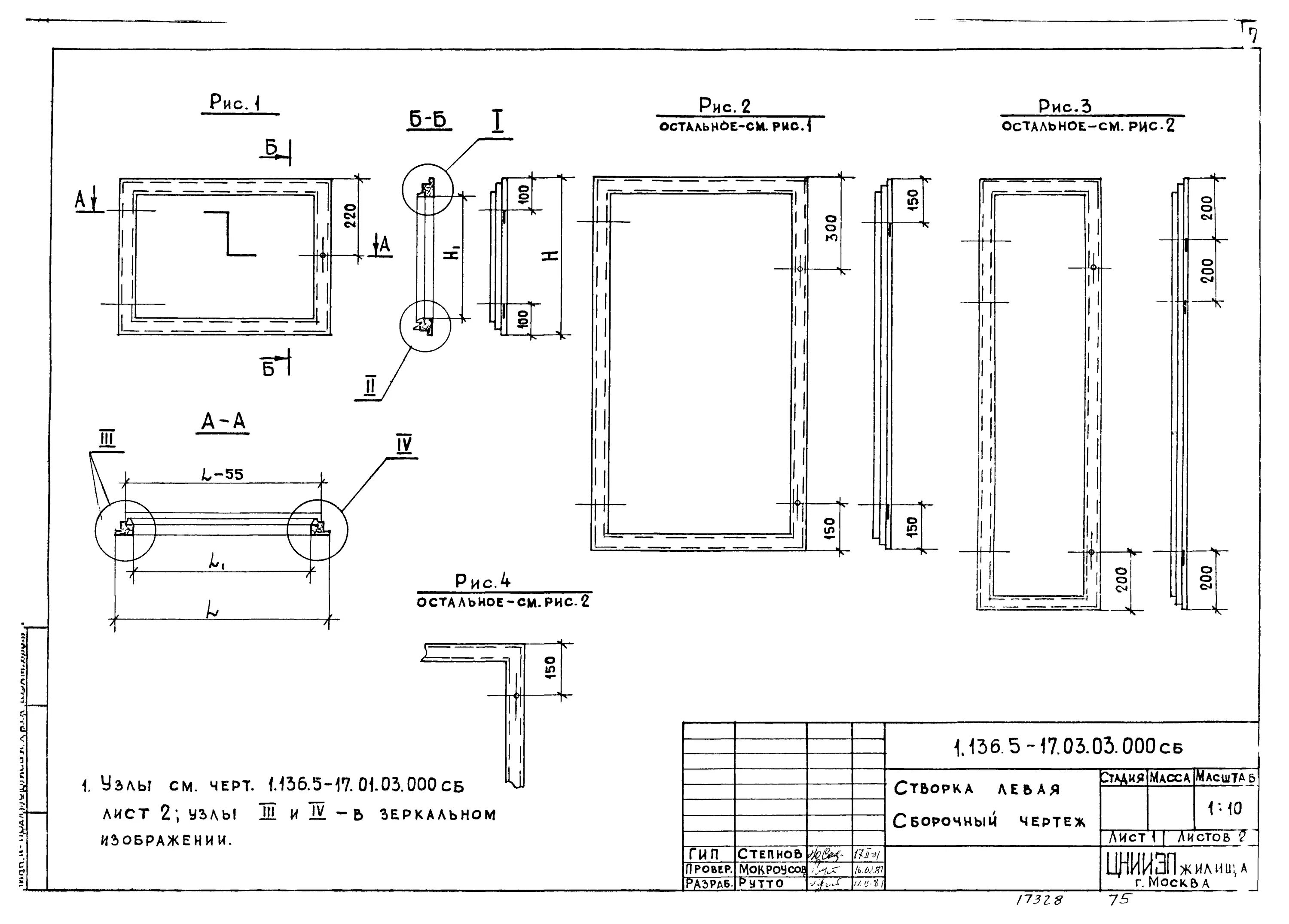
Тип 1 136