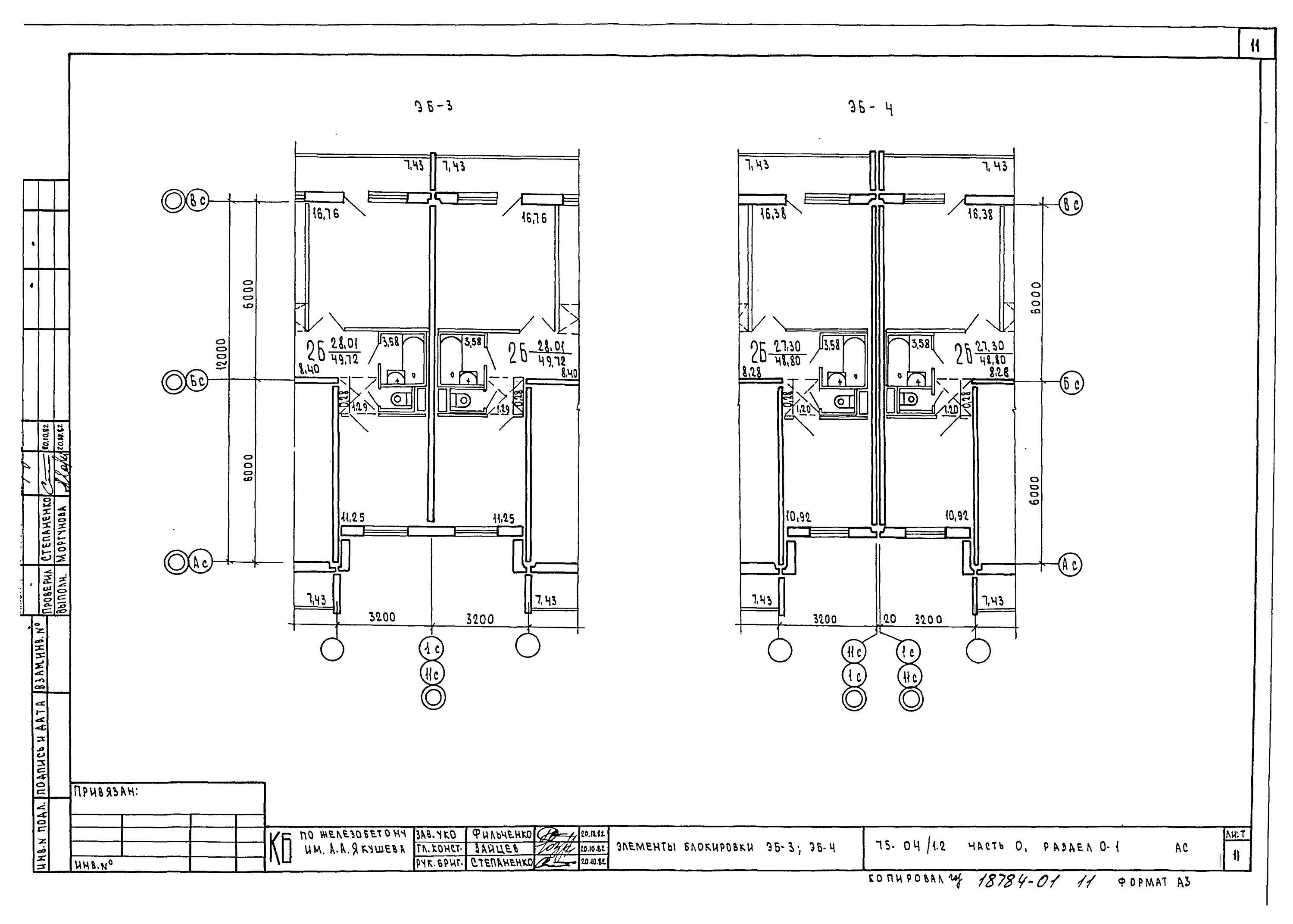
Типовой проект 75