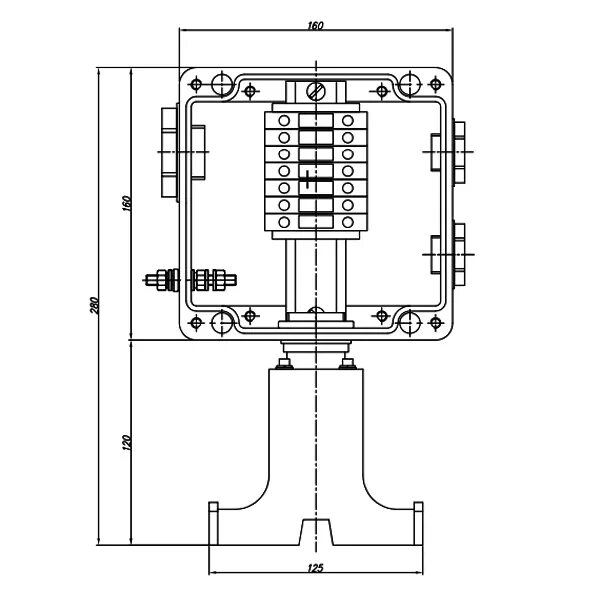
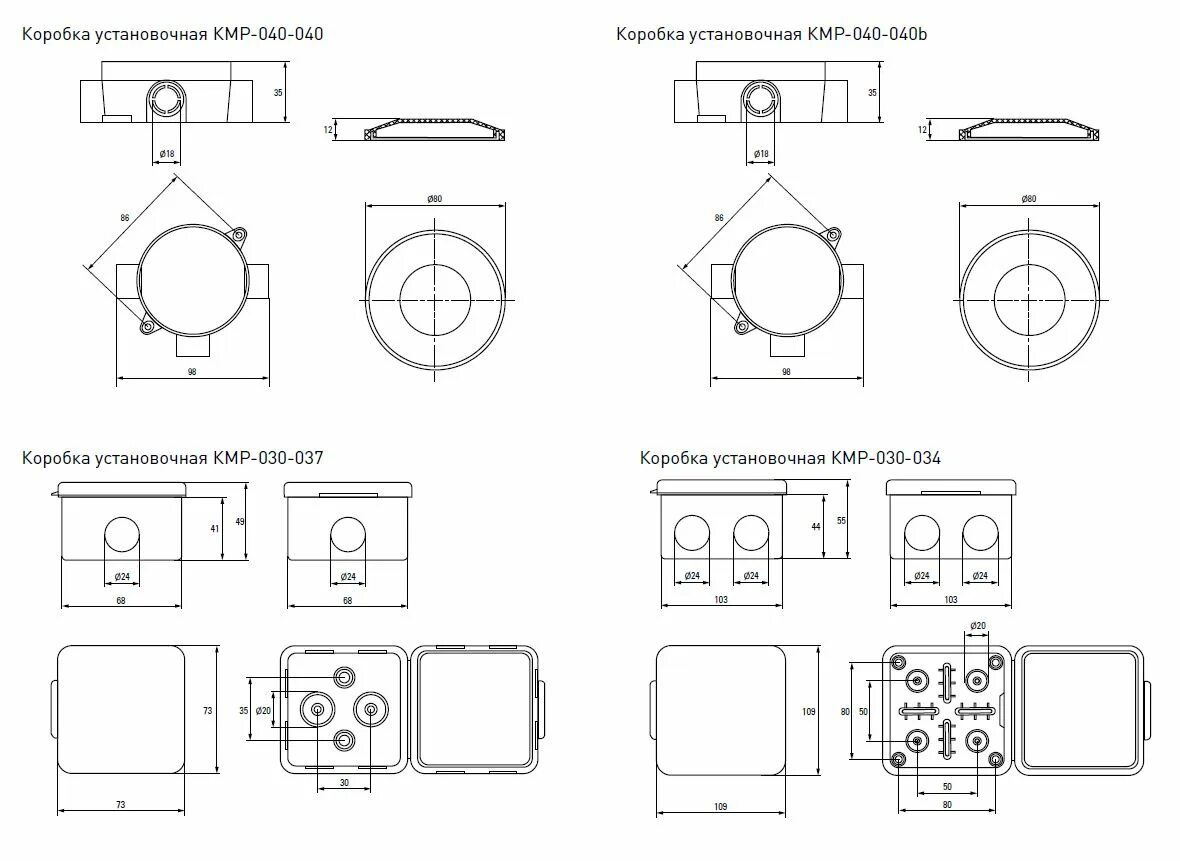
Типы соединительных коробок