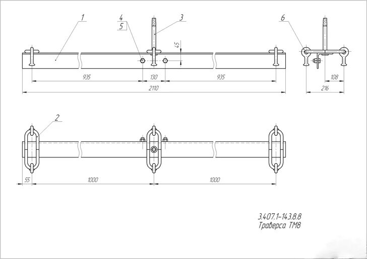
Тм 8