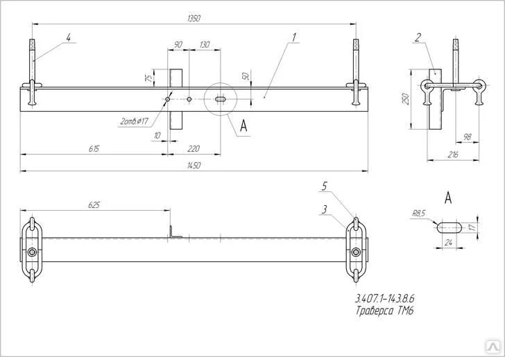
Tm six