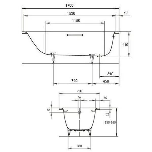
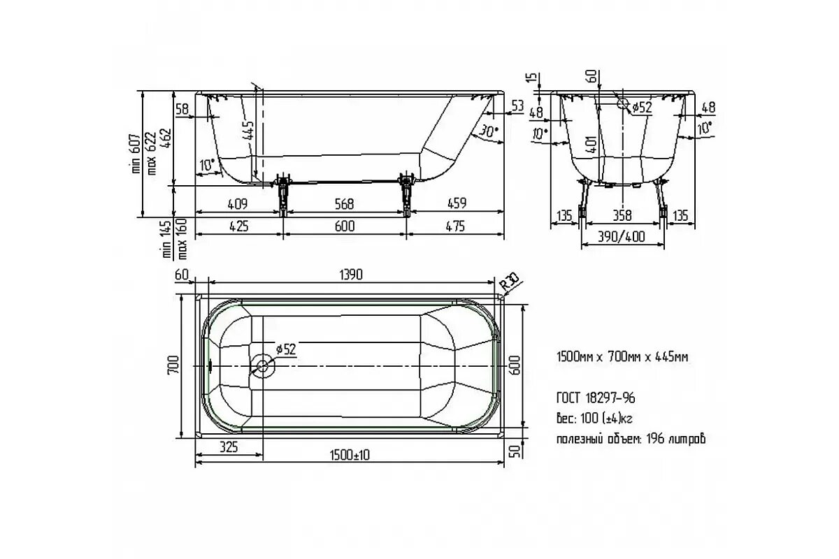
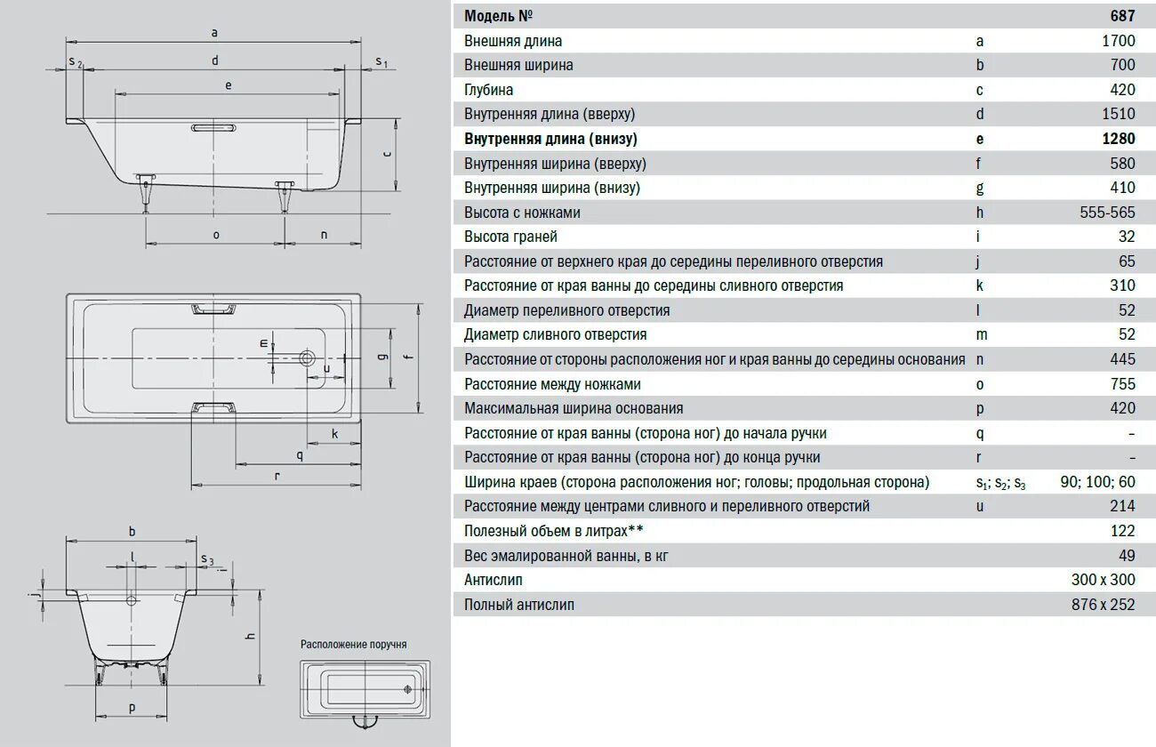
Толщина металла ванны