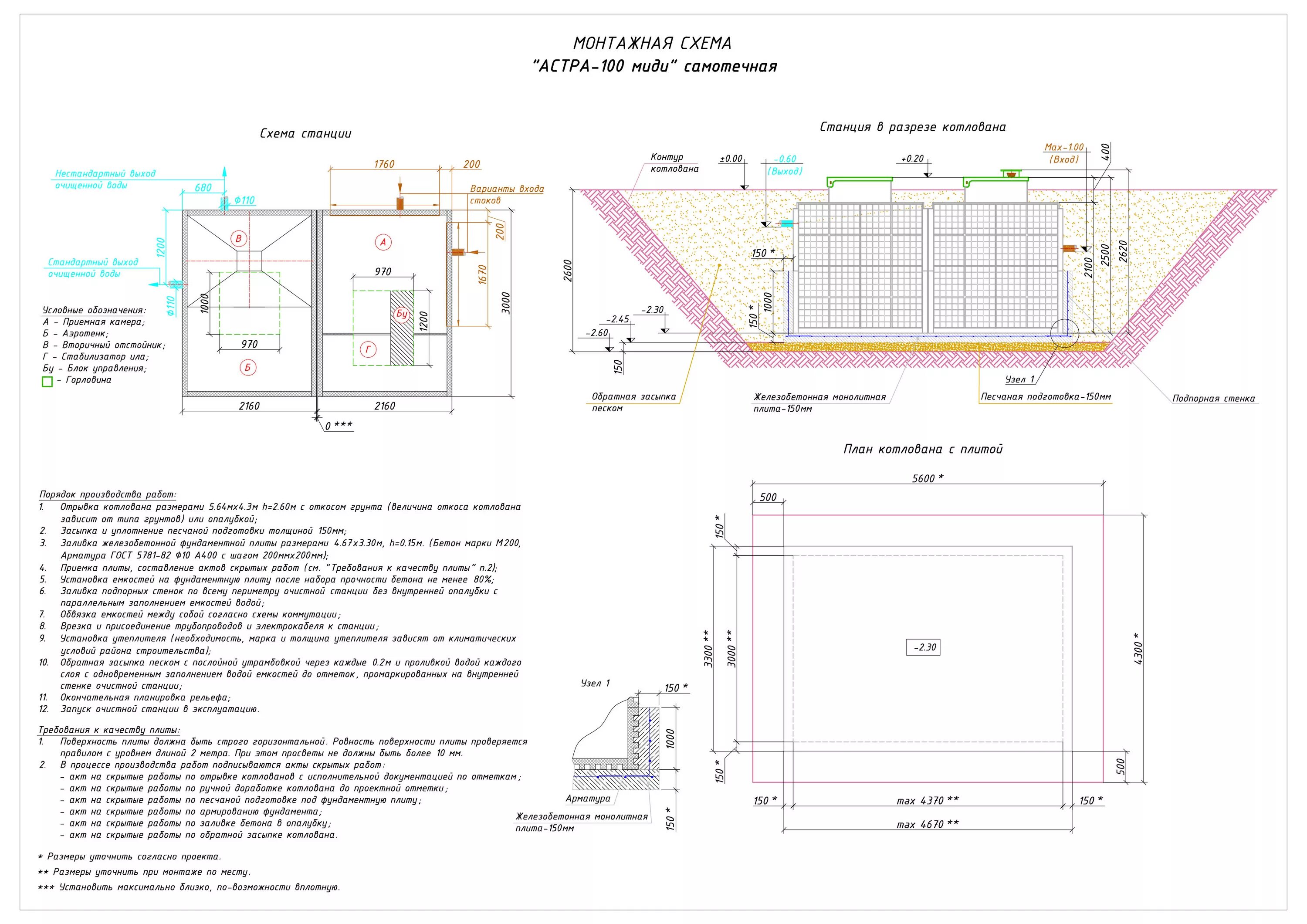
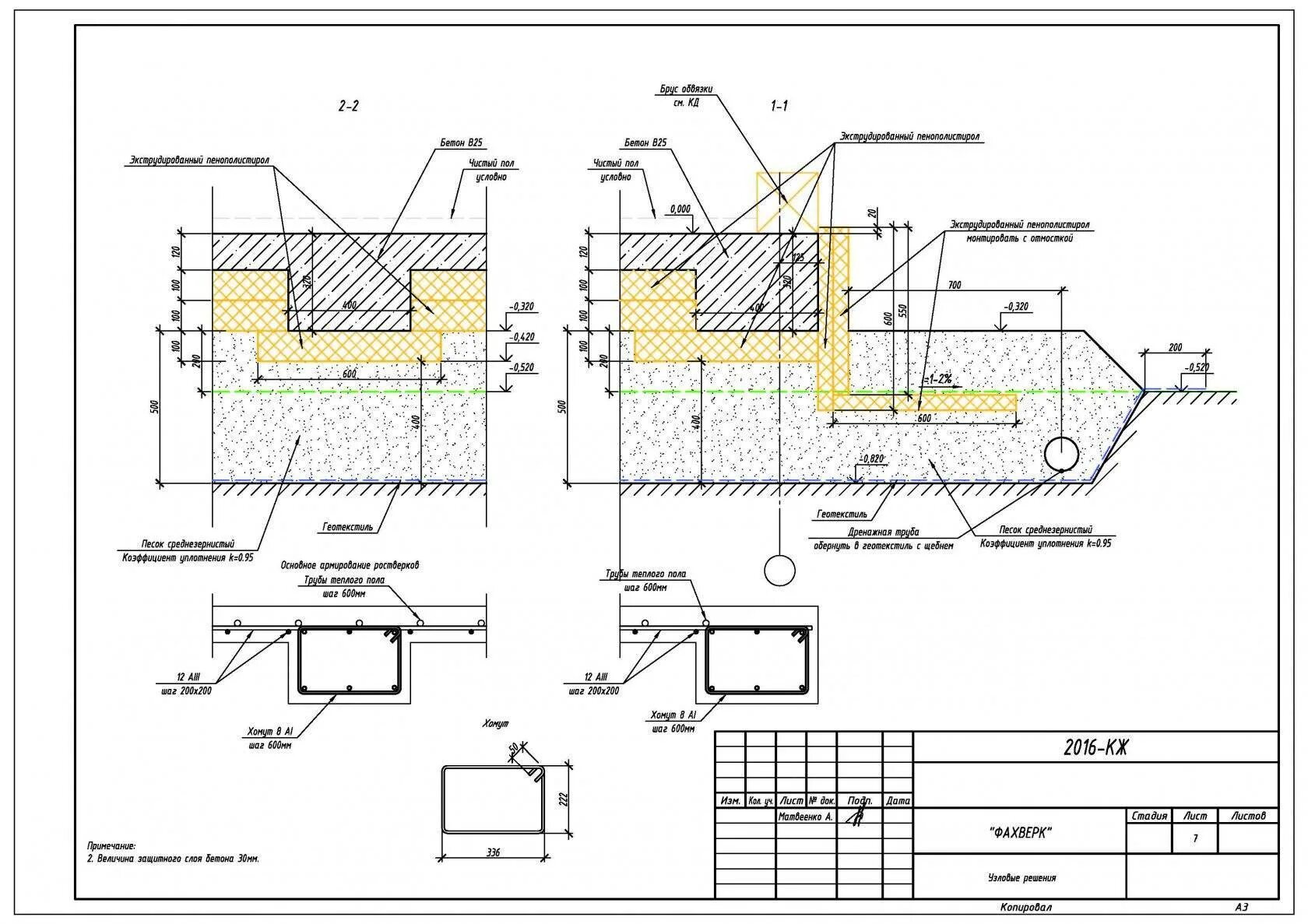
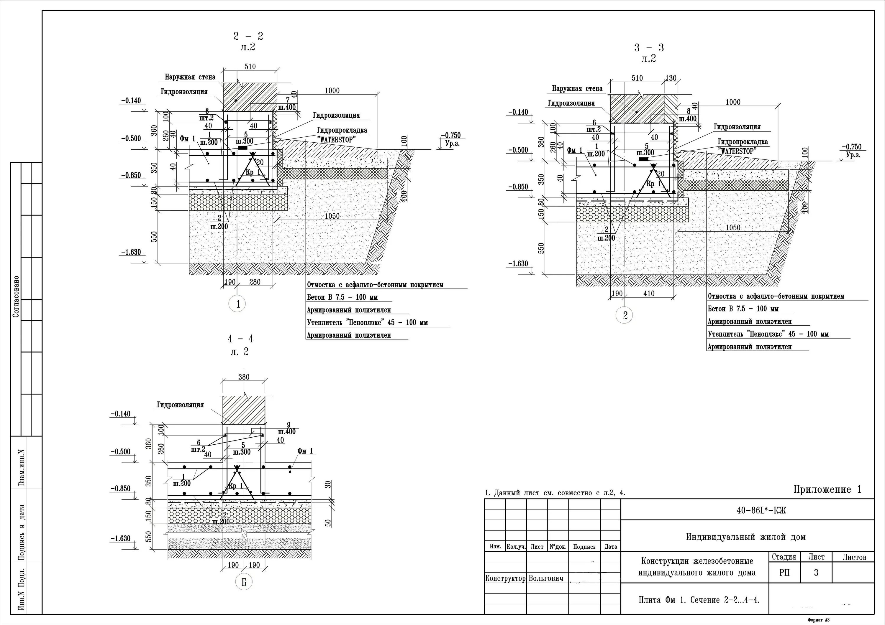
Толщина плиты фундамента