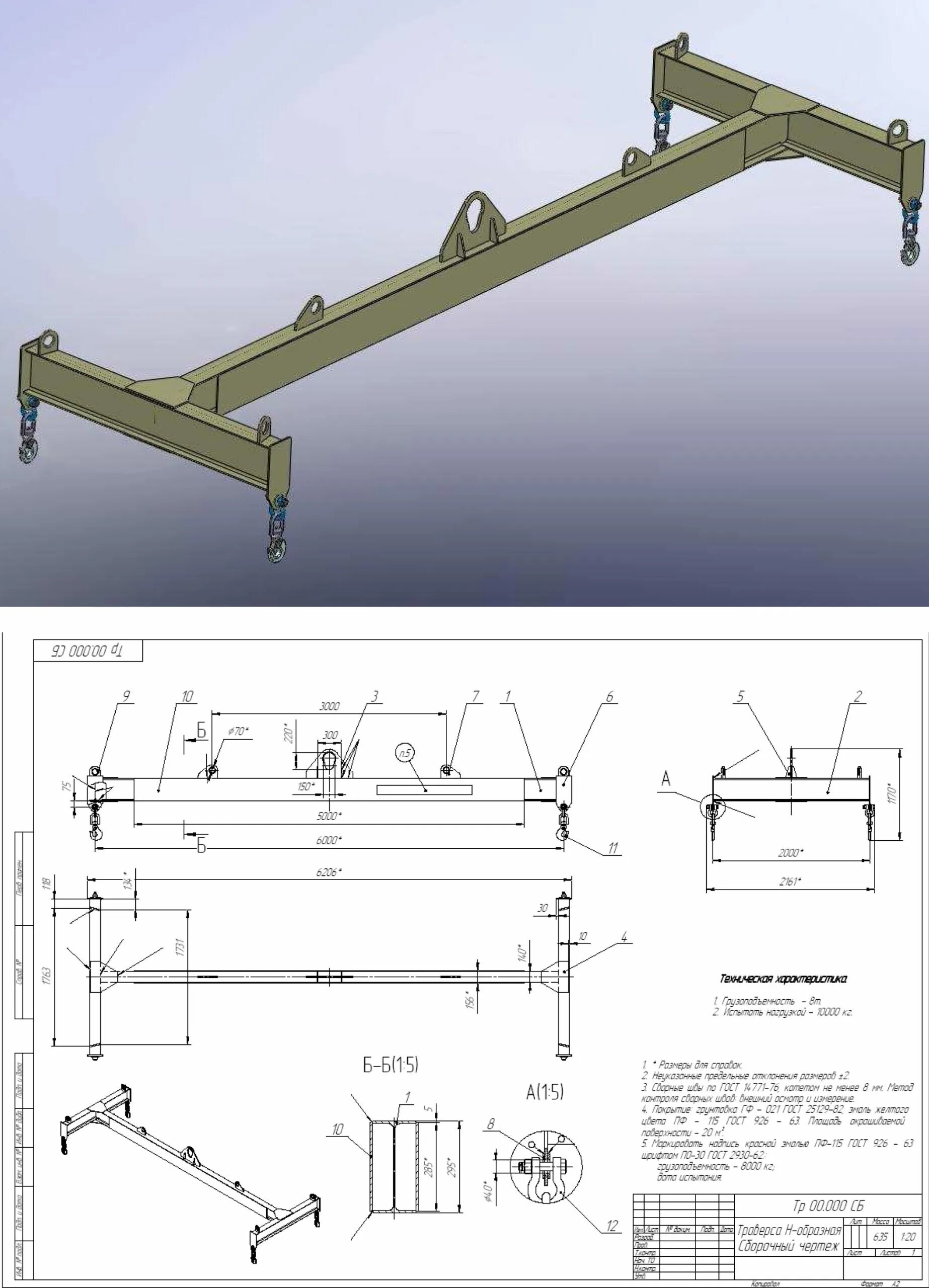
Траверс н