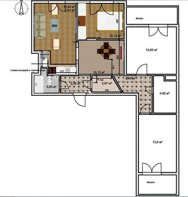
Трешку сделай