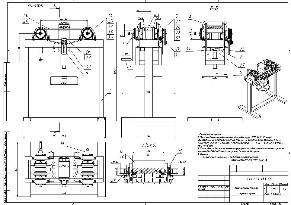
Трубогиб для профильной трубы размеры