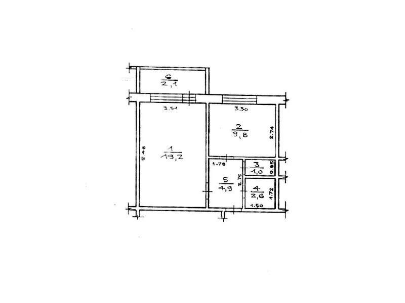
Тучково восточный микрорайон 6 1