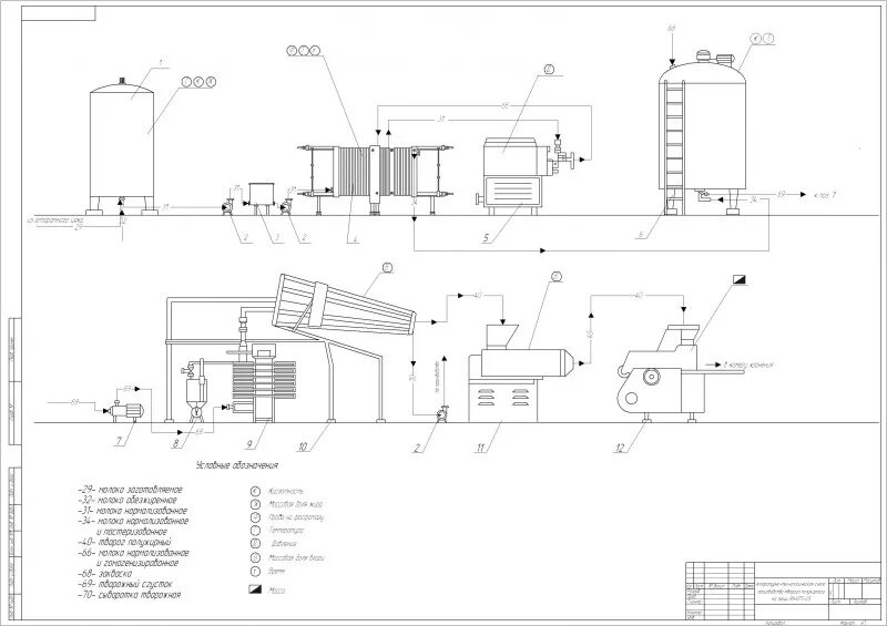
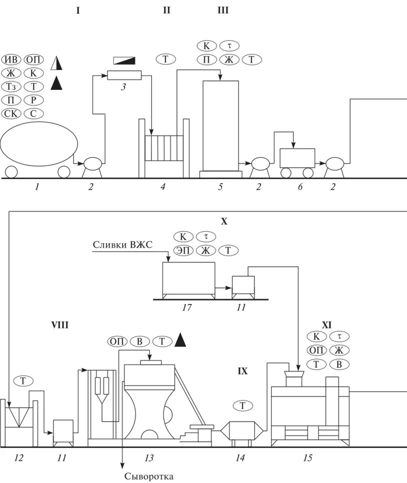
Творог схема