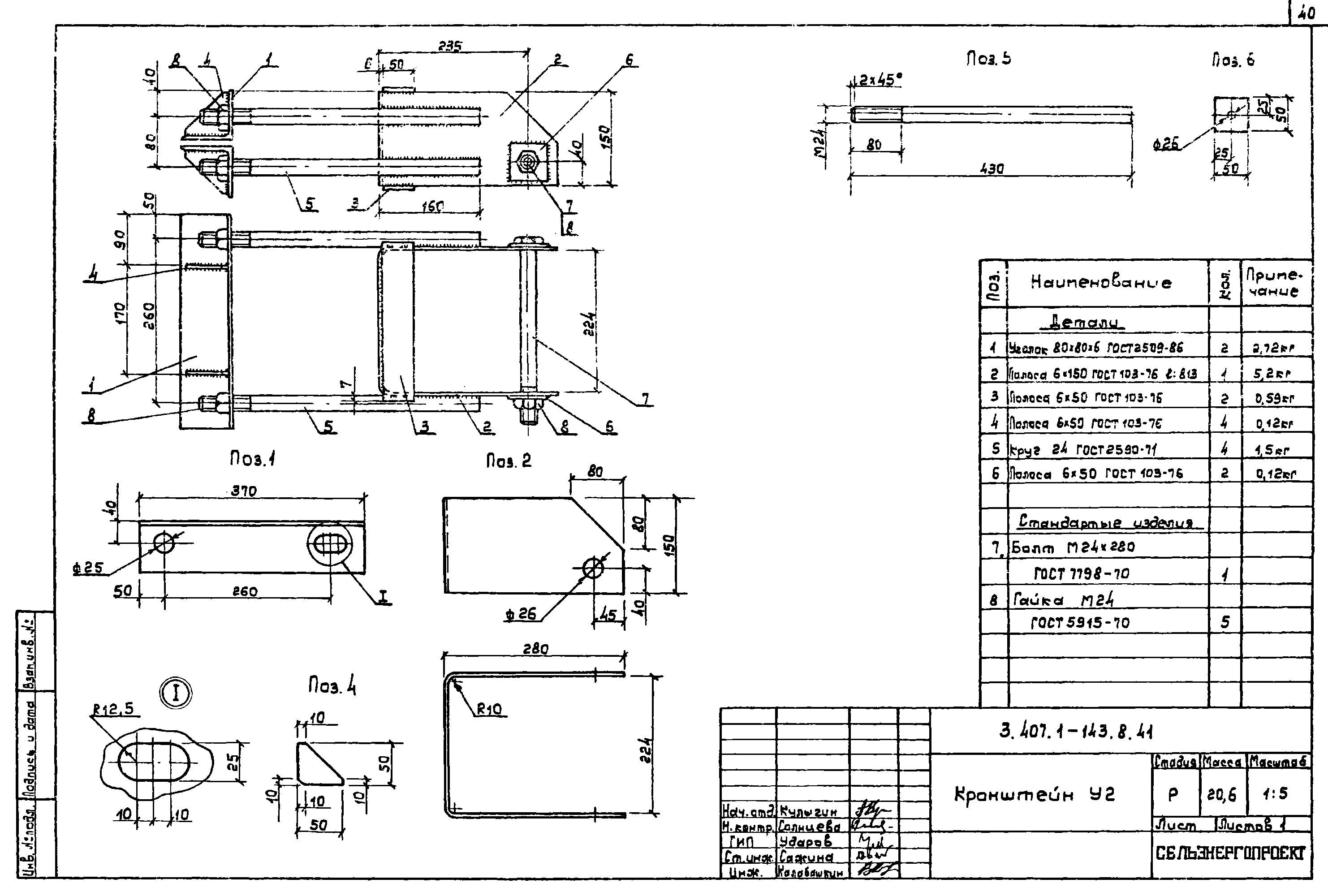
У1 у2 у3