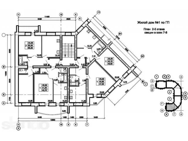
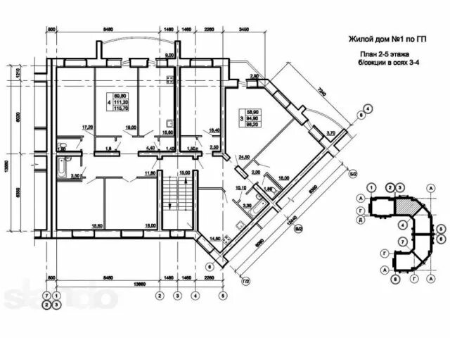
Угловые оси