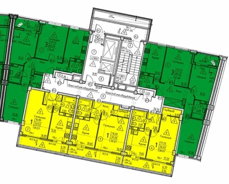
Ул генерала глазунова 11