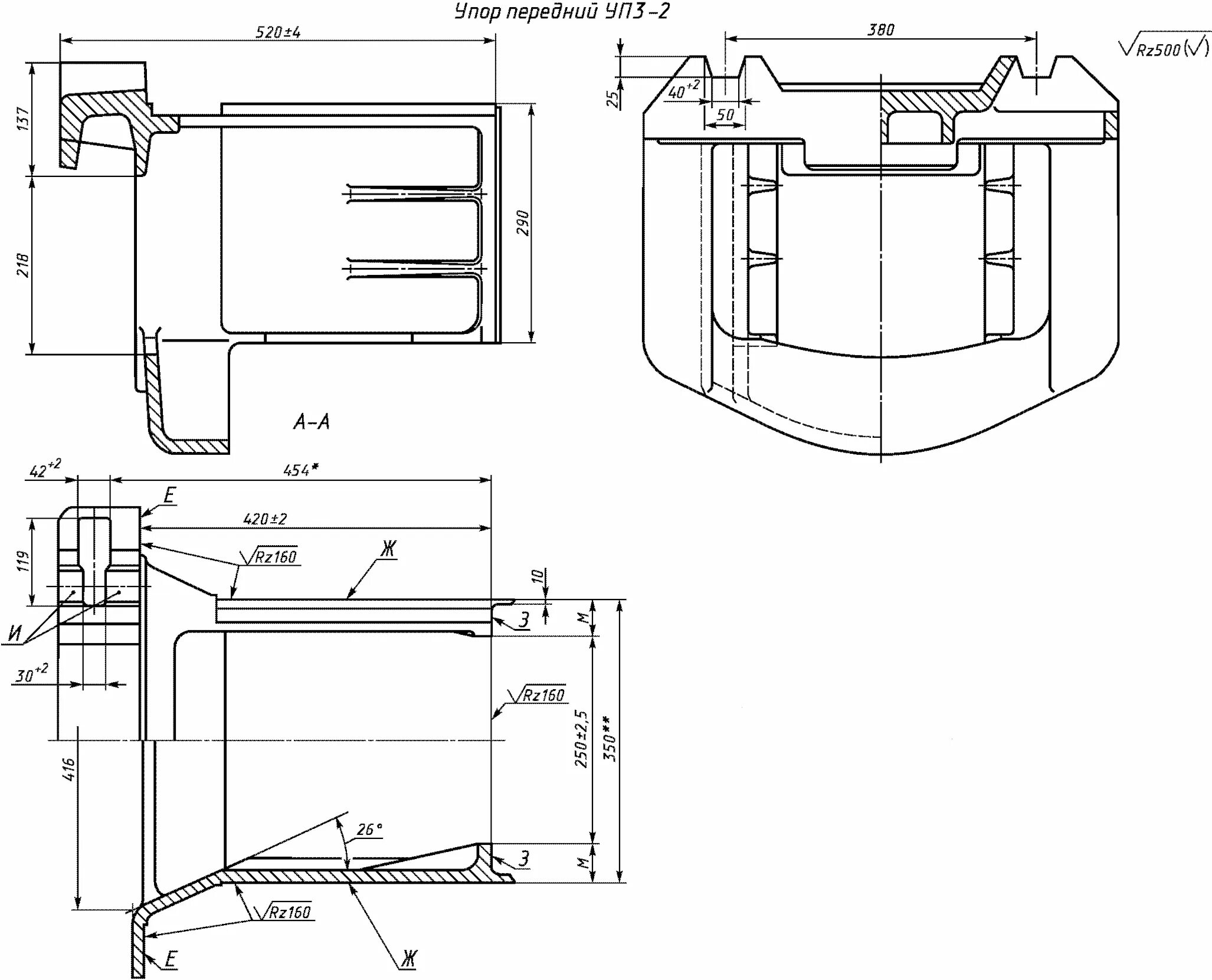
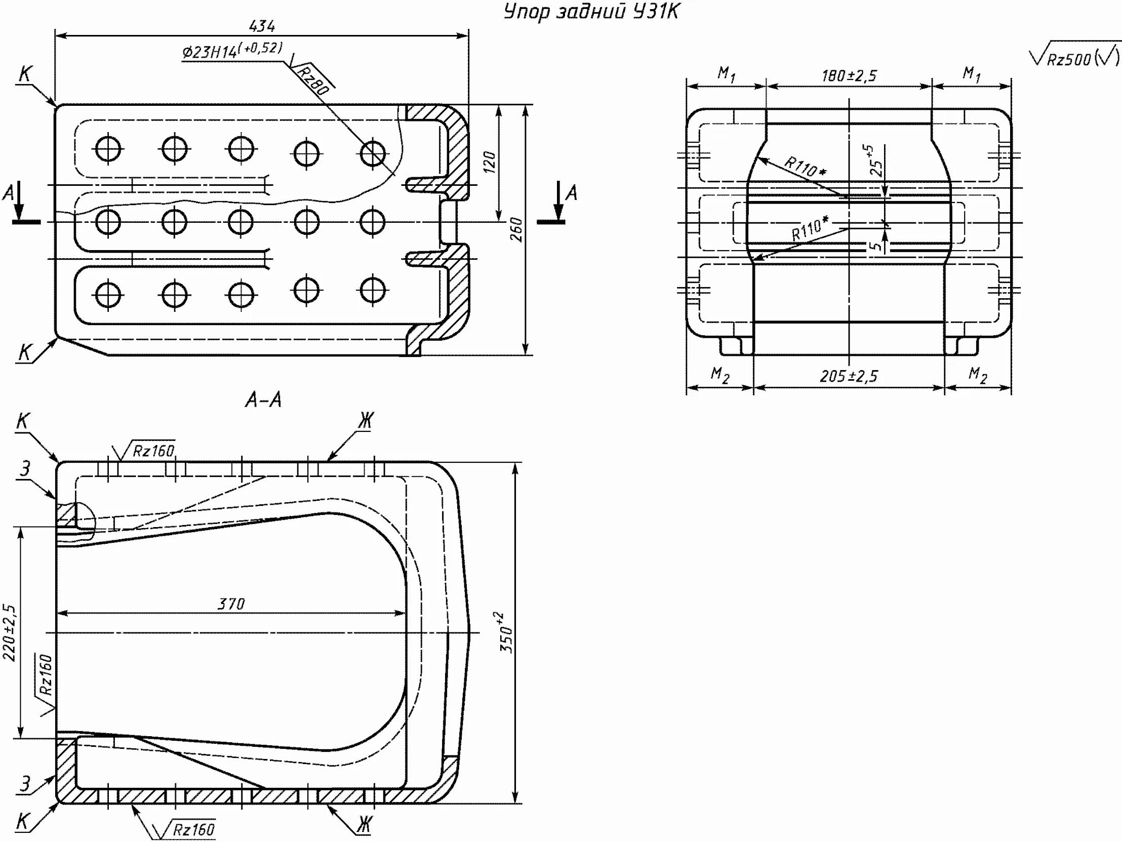
Уп уз