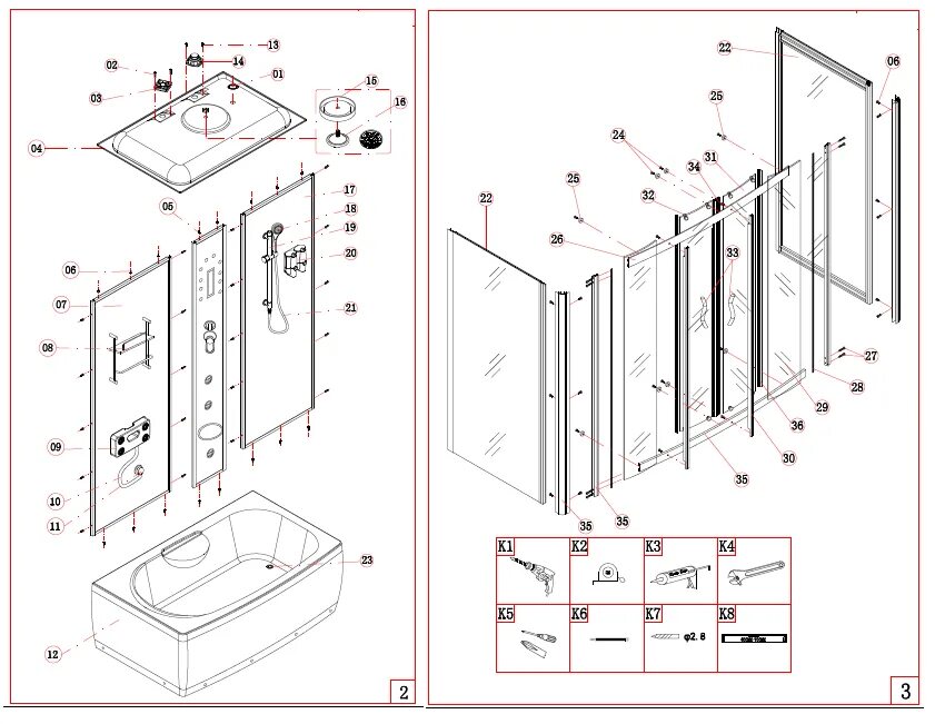
Установка душевой ниагара