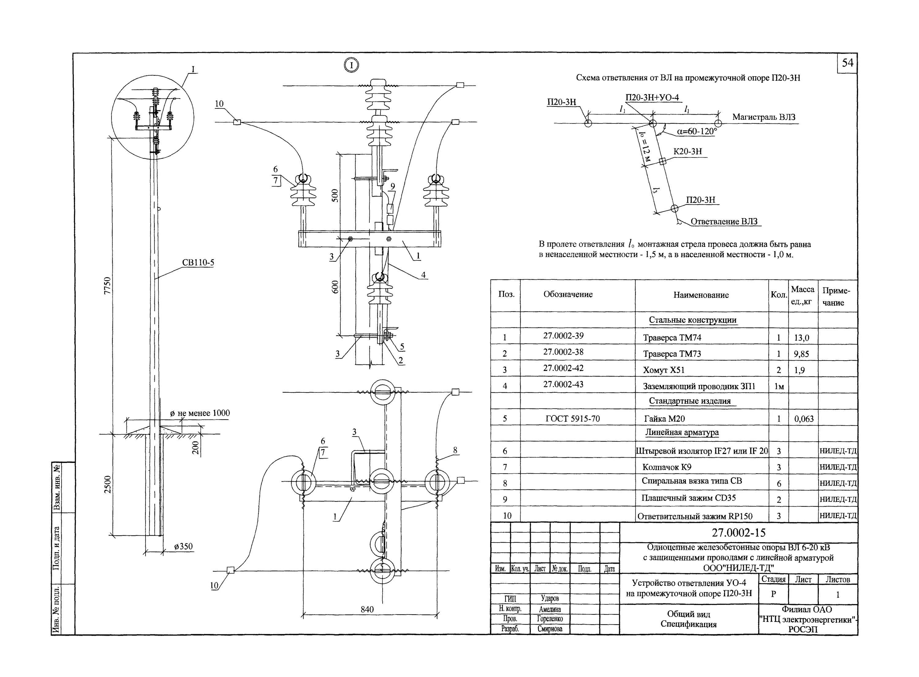
Установка муфты на опоре