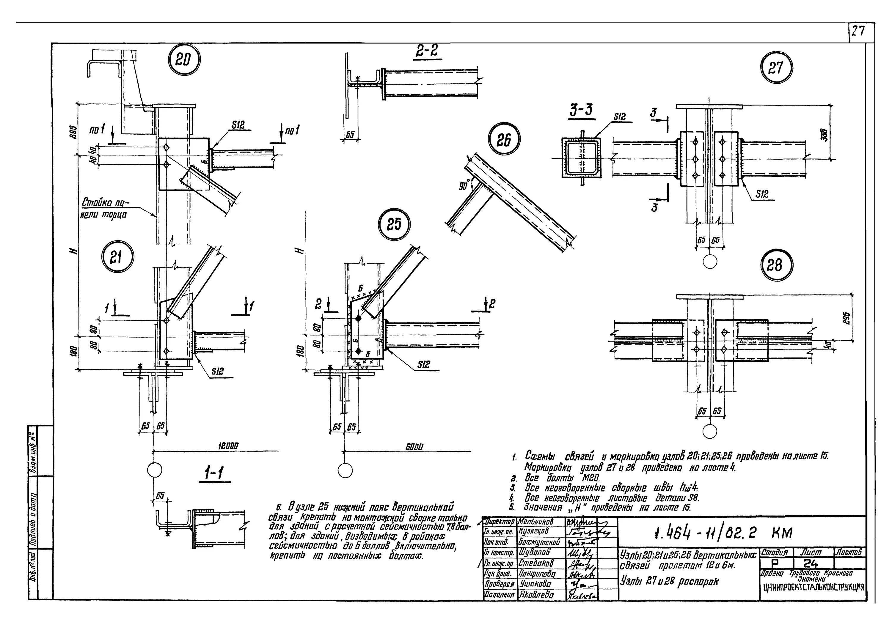
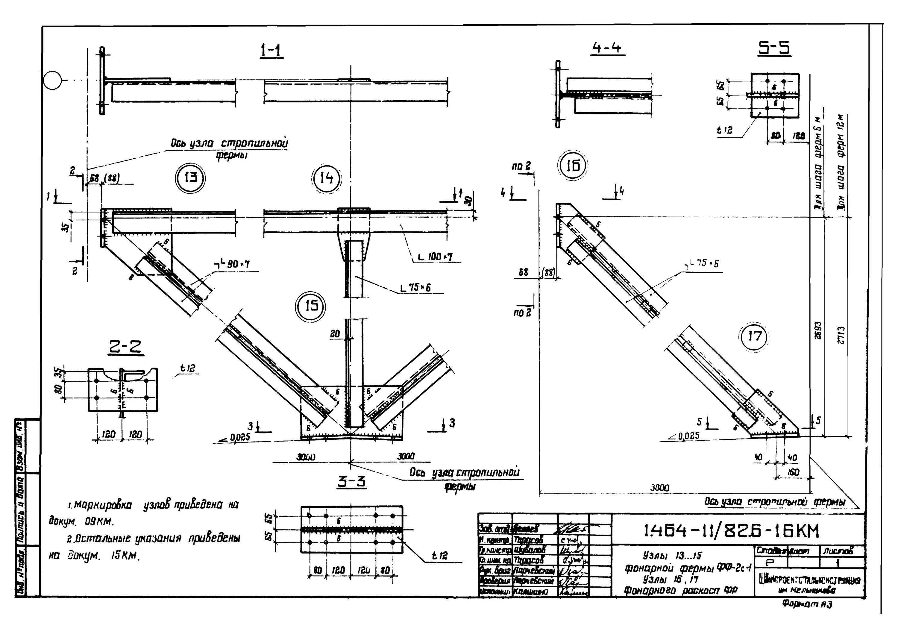
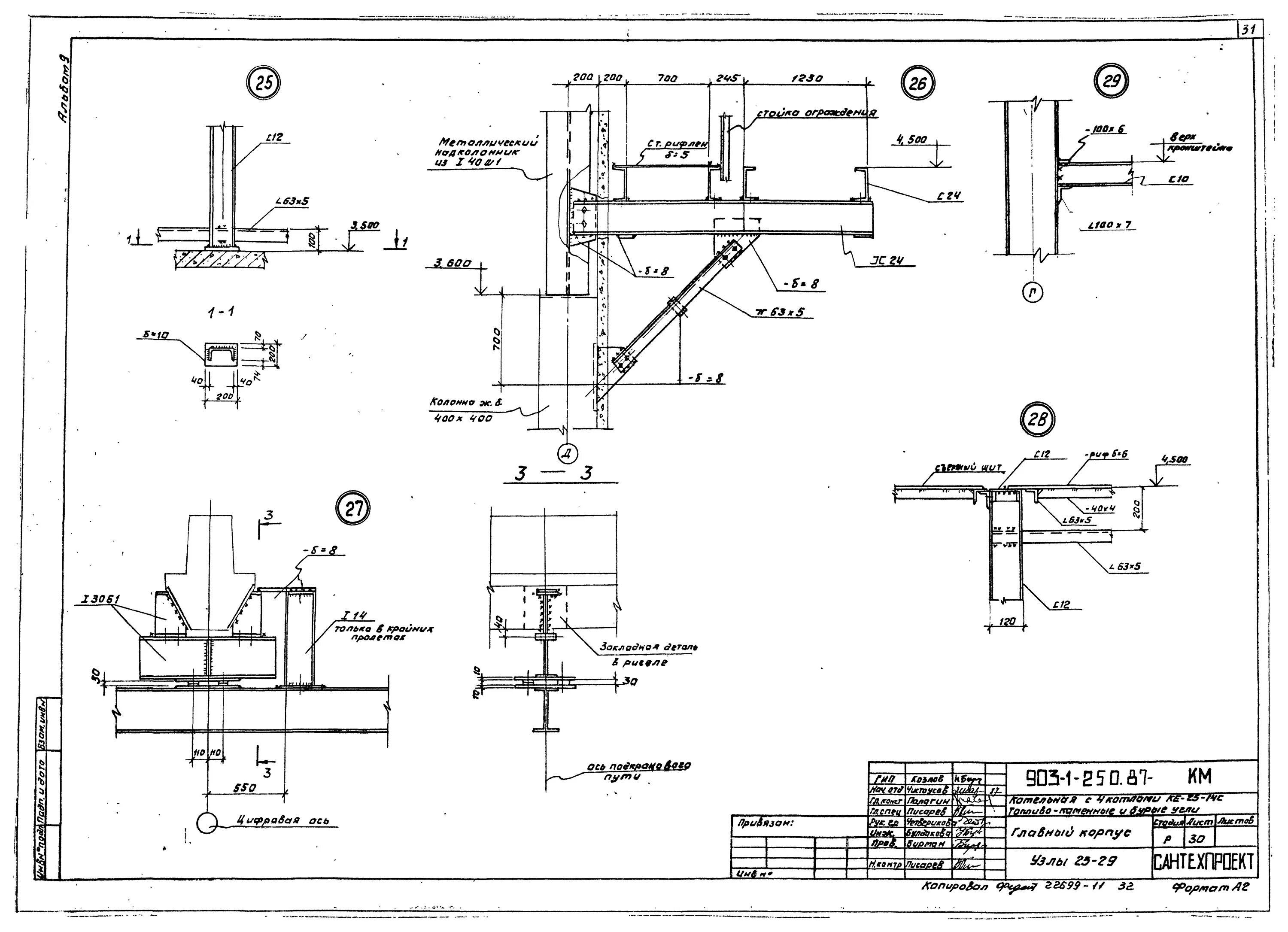
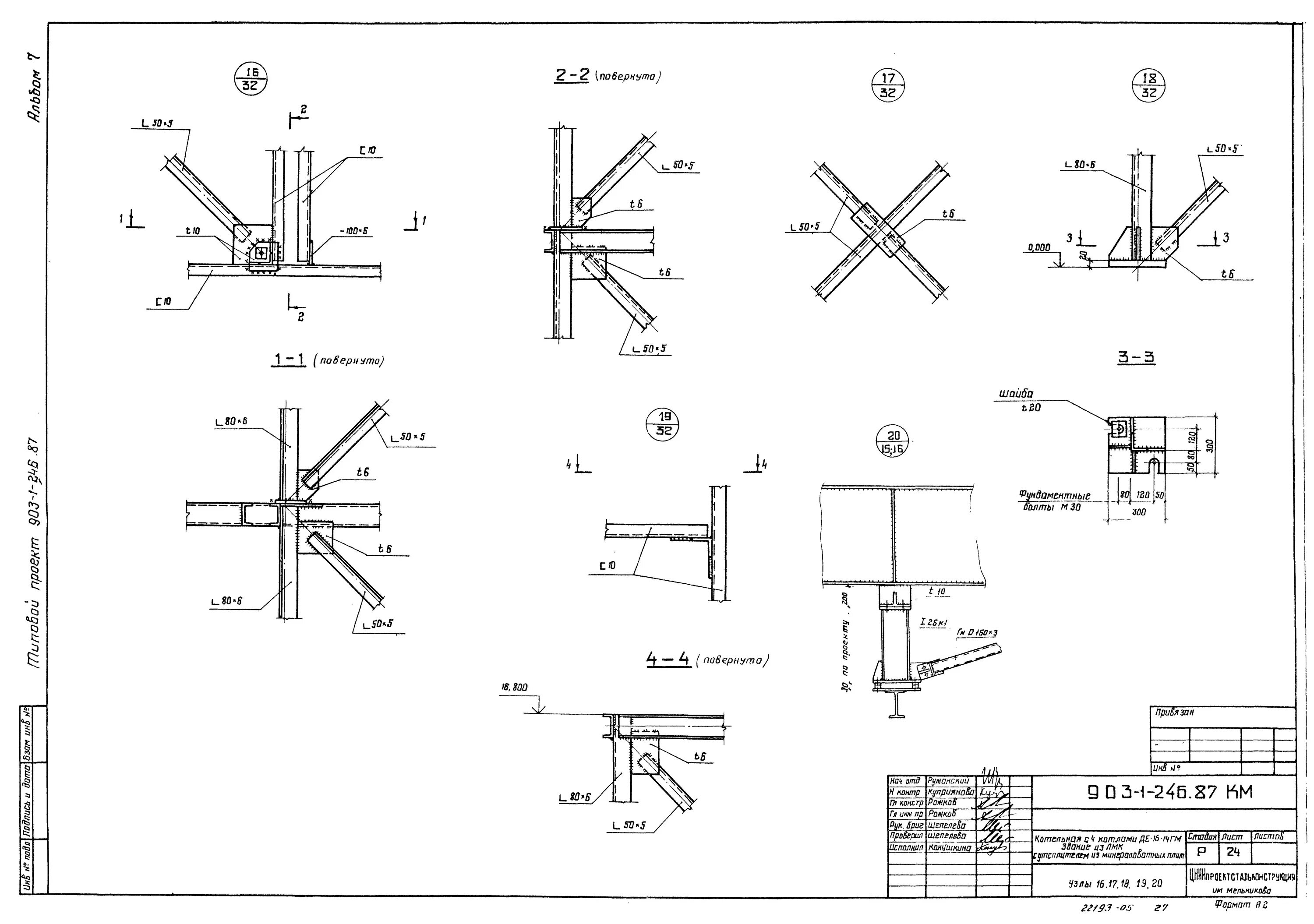
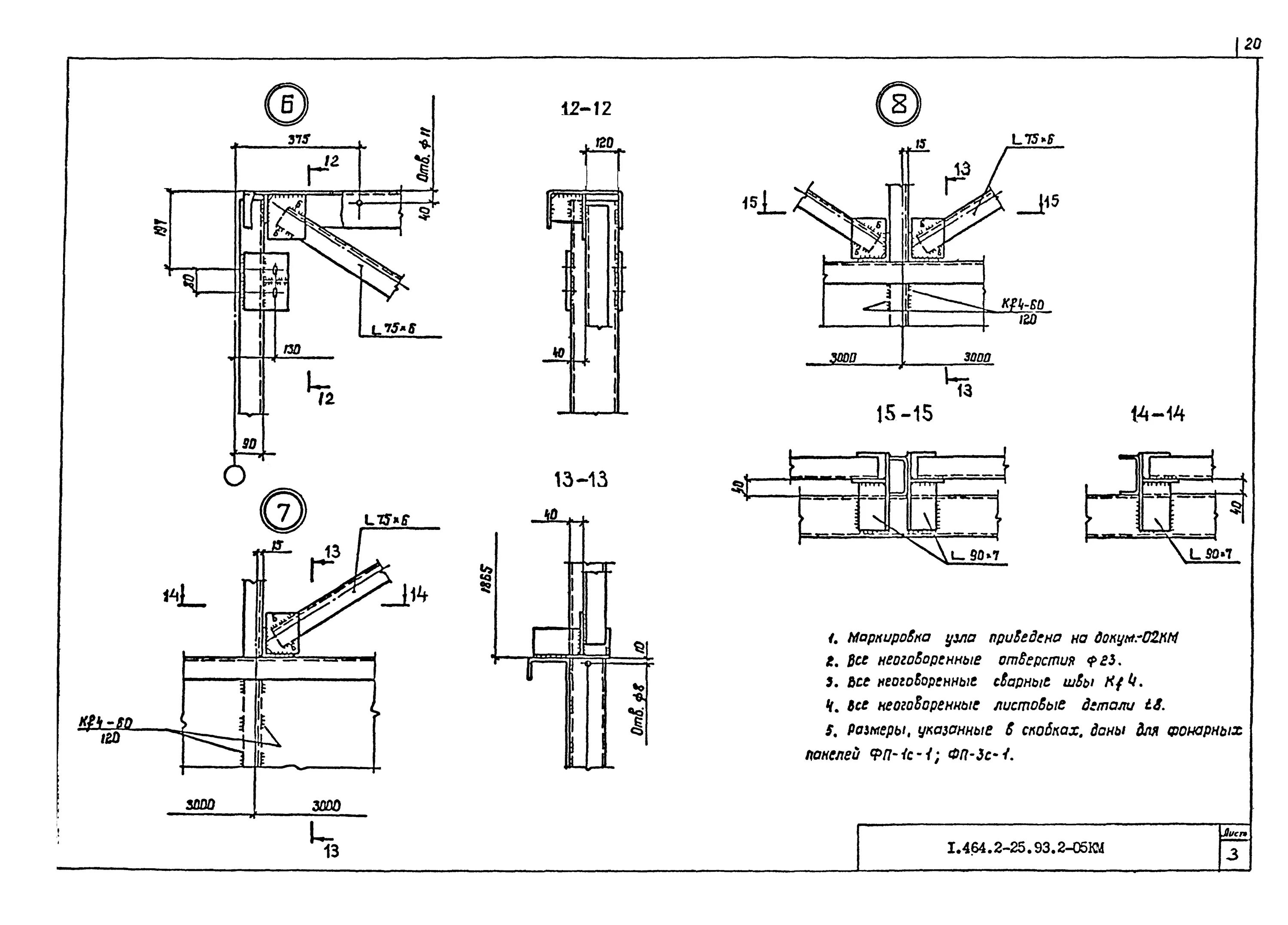
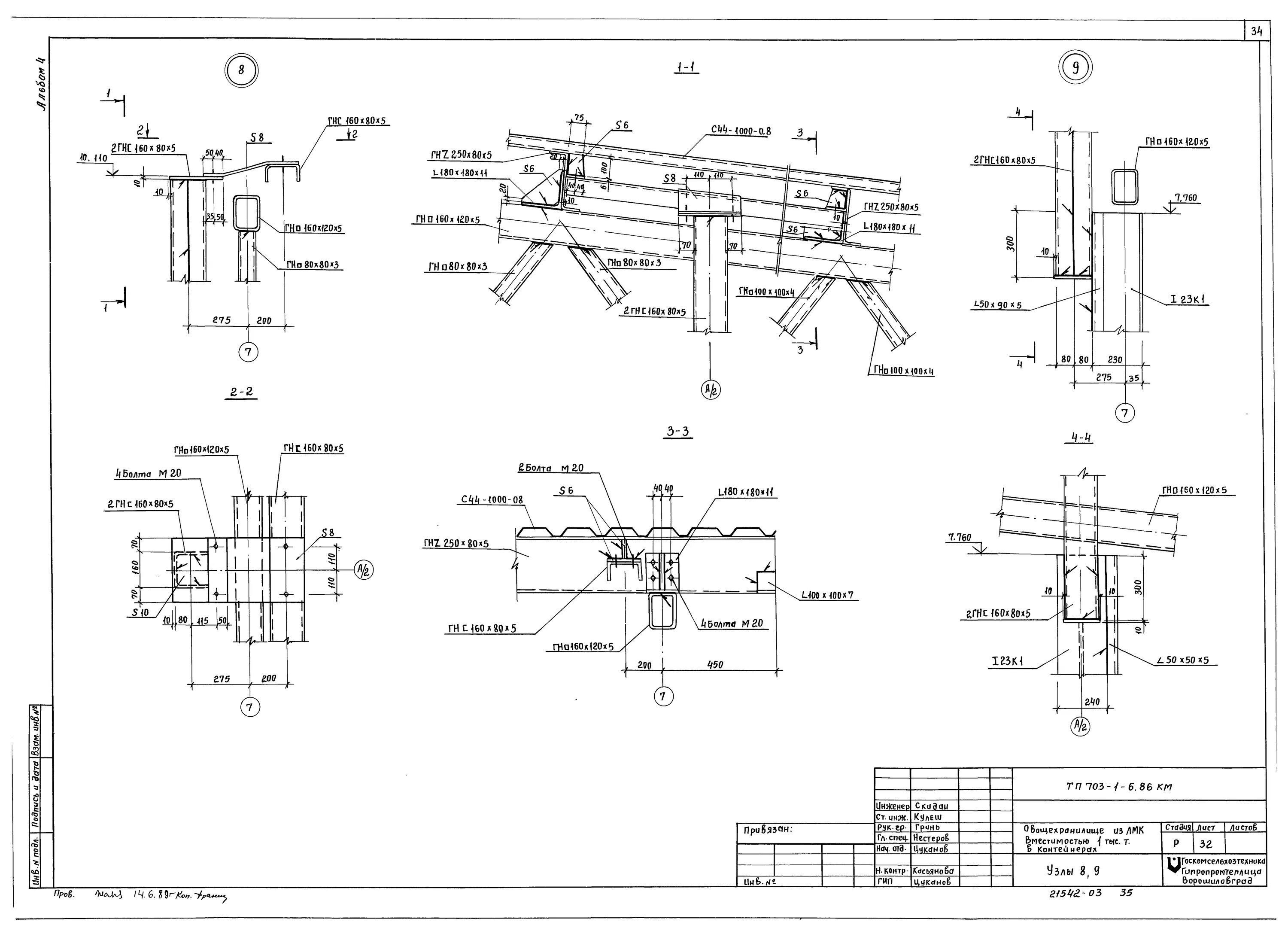
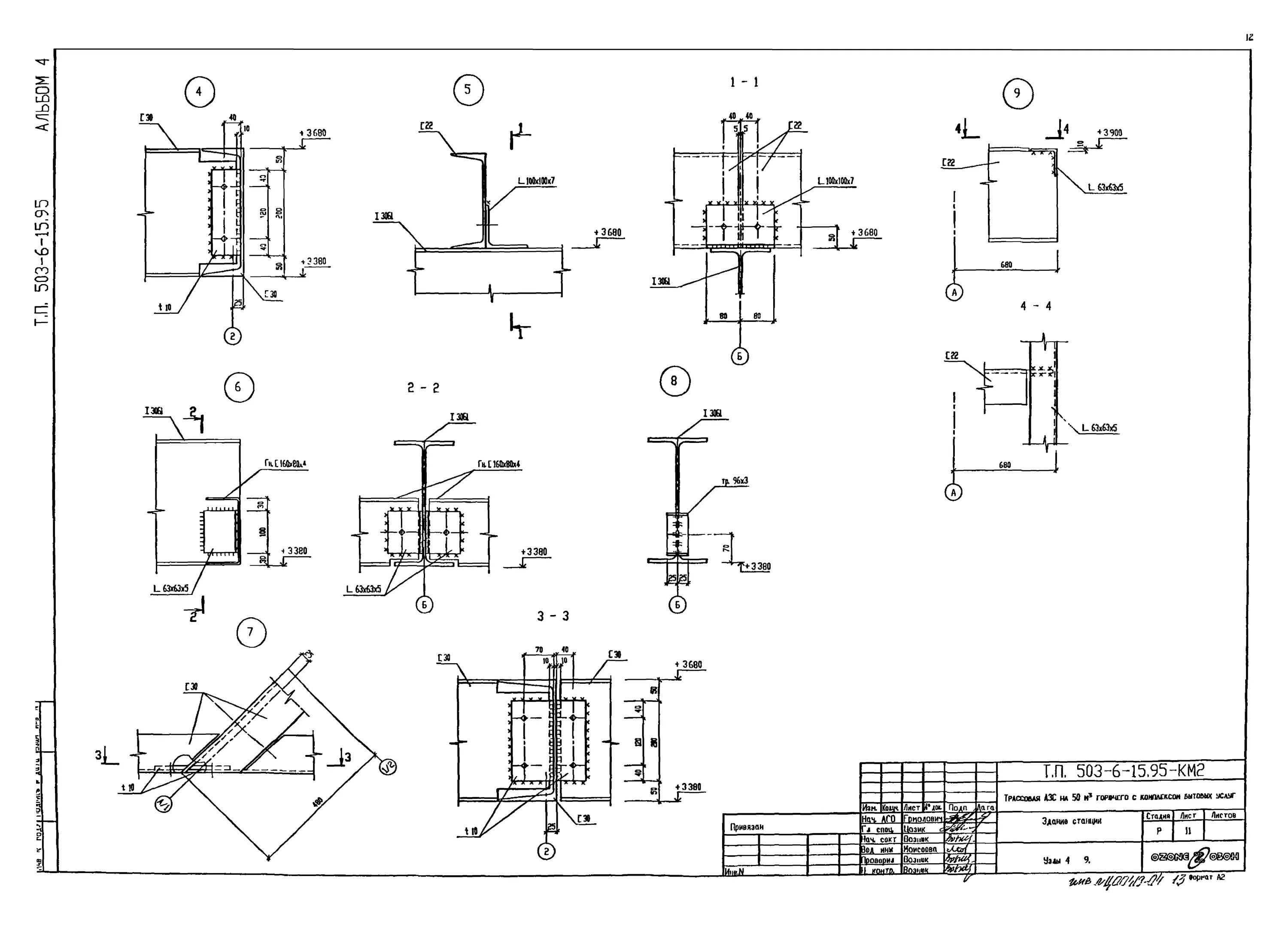
Узлы металлических конструкций