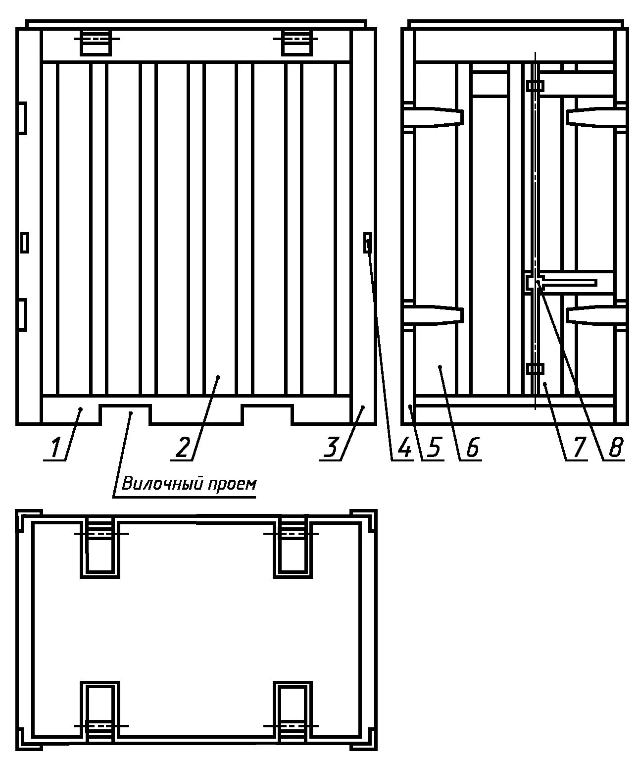
Вес контейнера брутто