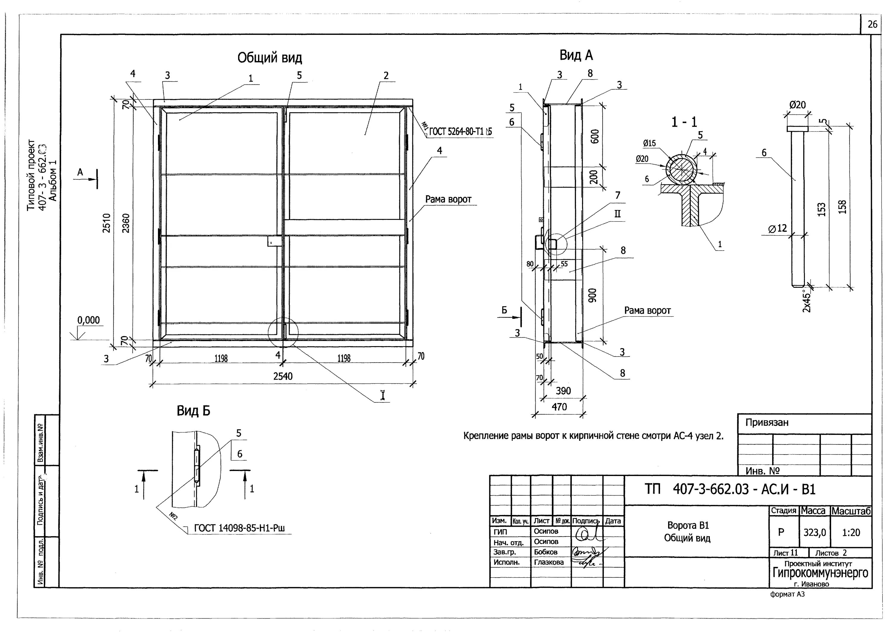
Вес ворот