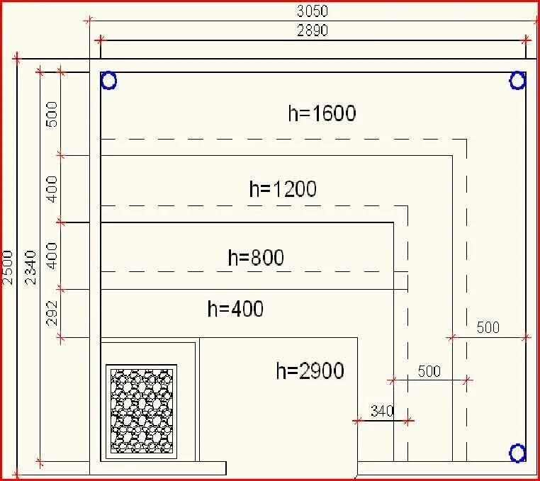
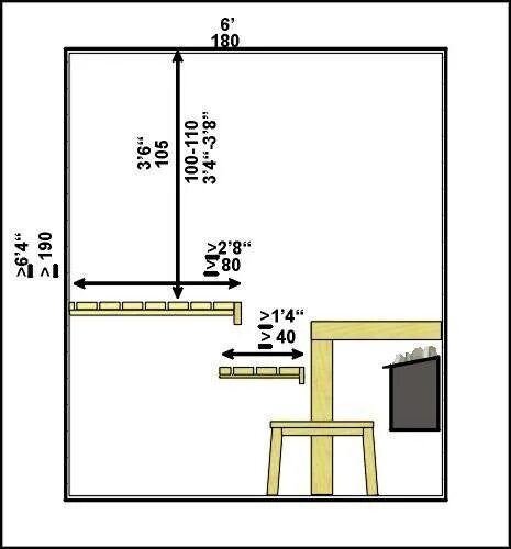
Высота потолков в бане в парной