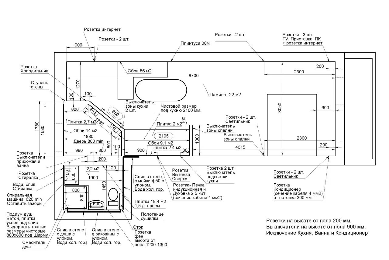
Высота расположения выключателей