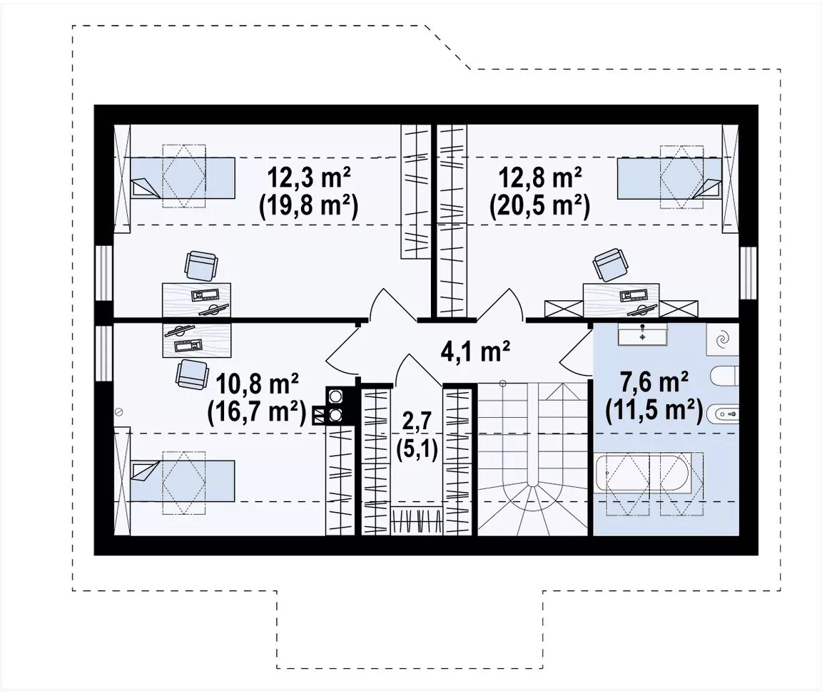
Z7 проект дома