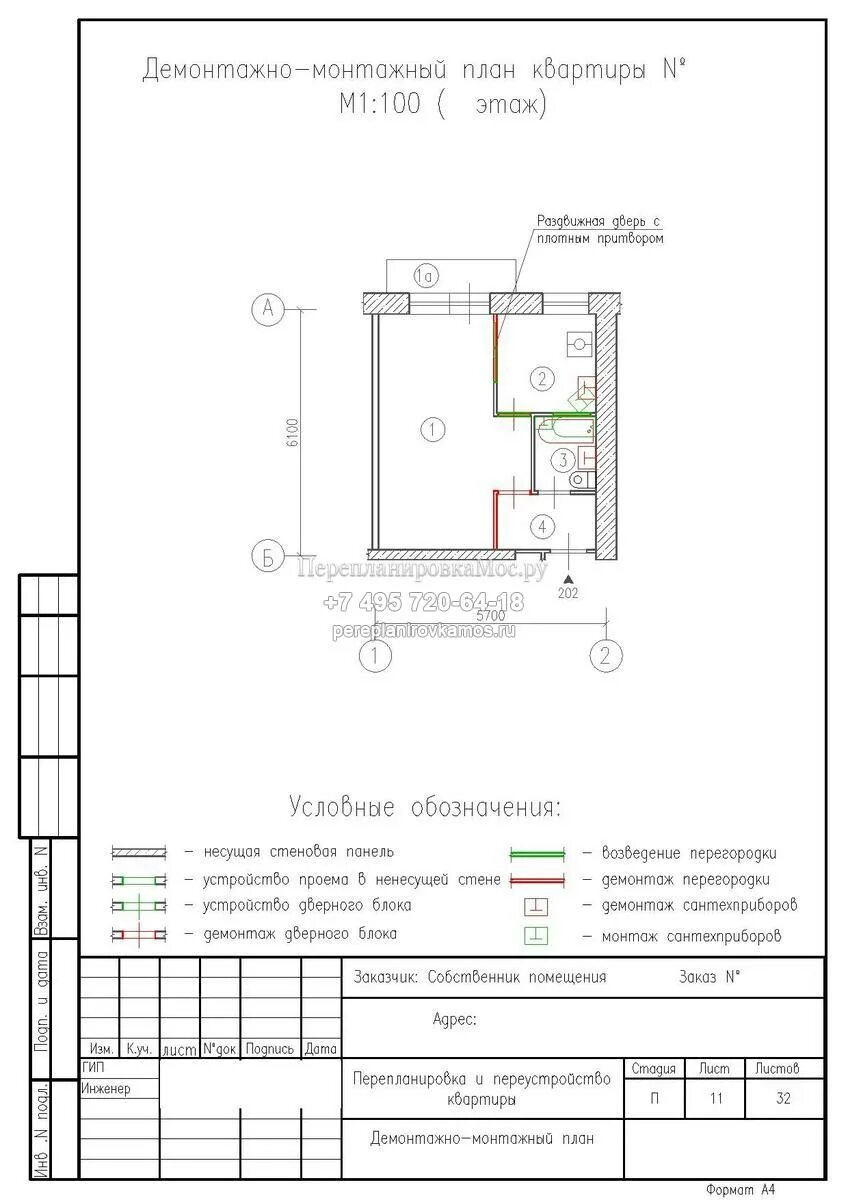
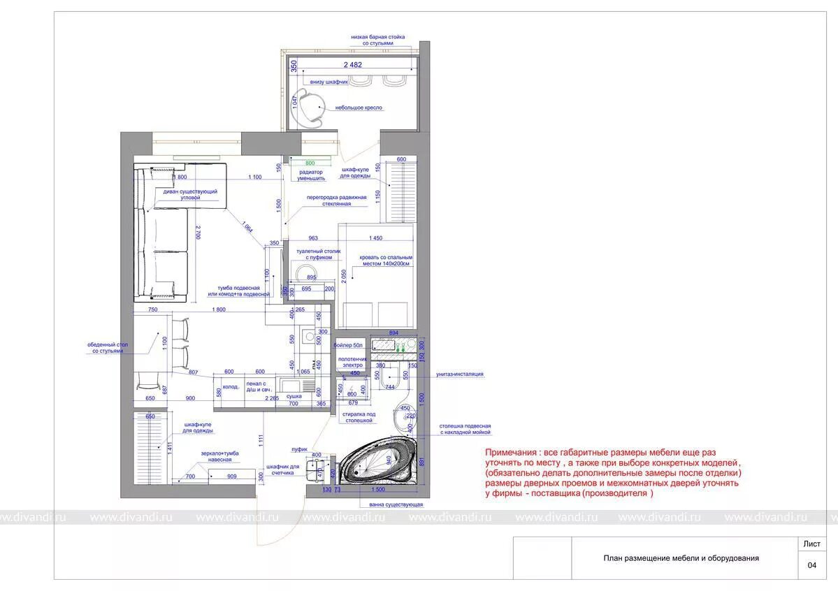
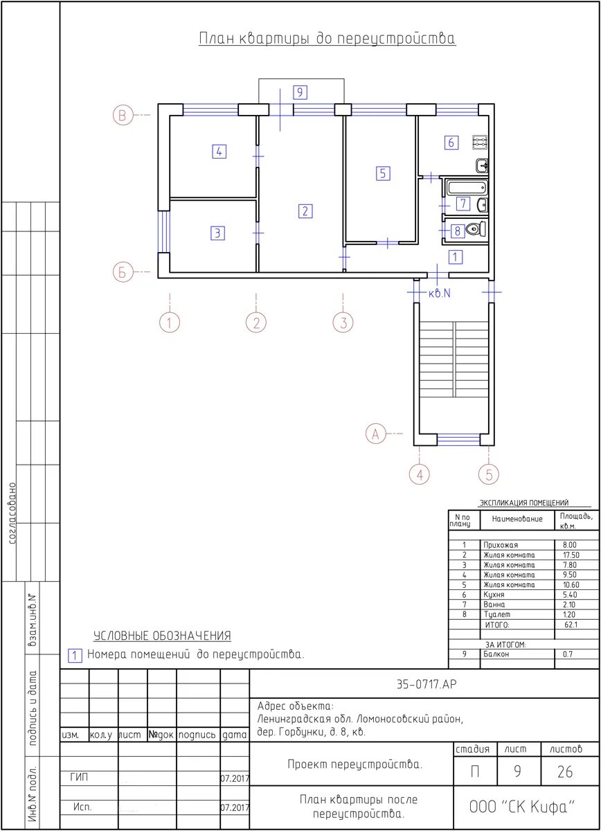
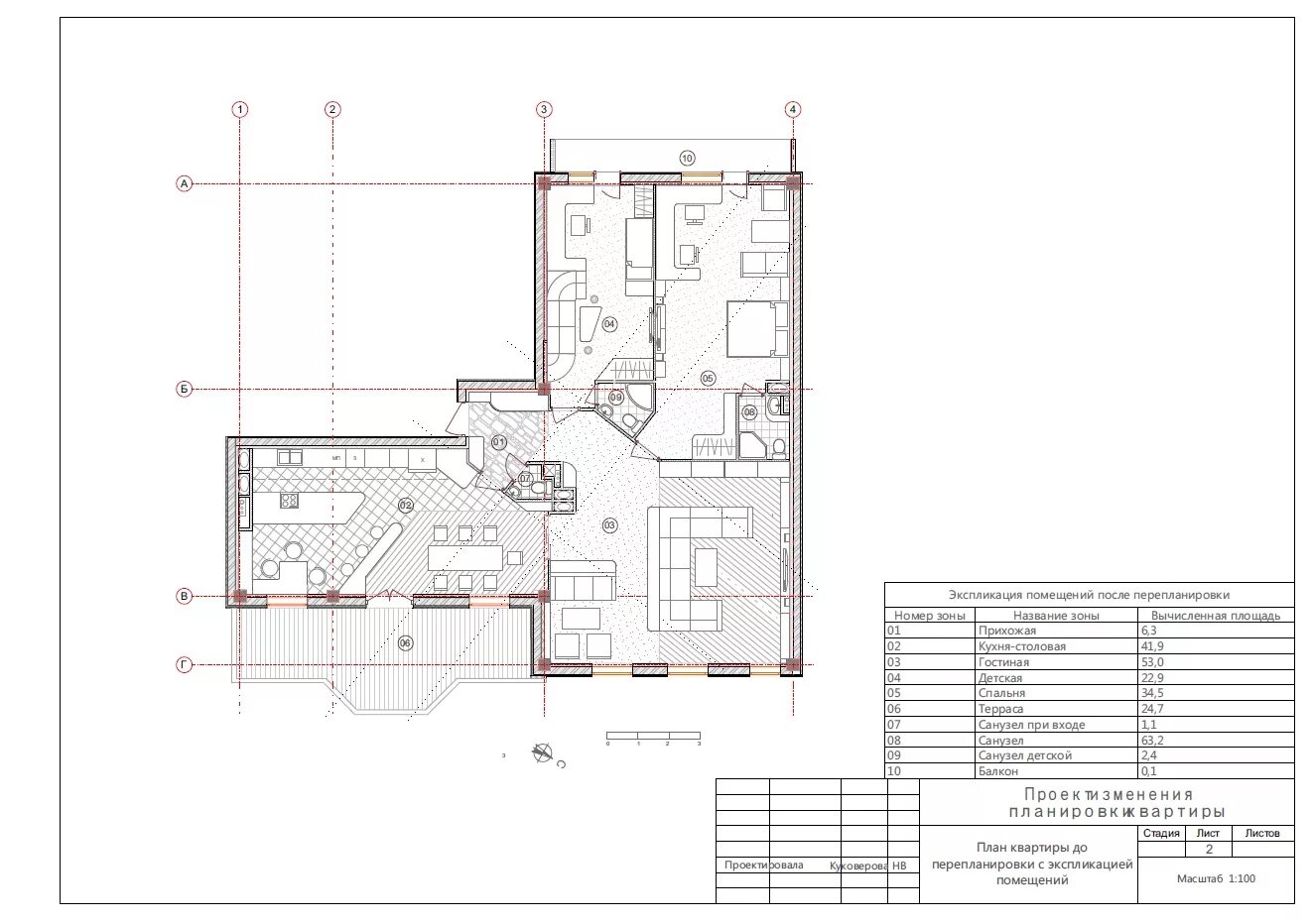
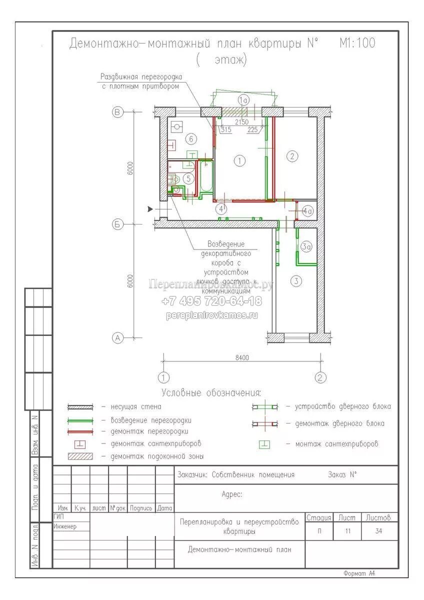
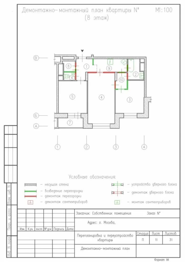
Закон перепланировки 1 апреля