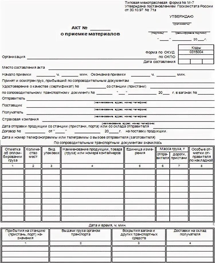
Заполнение акта приемки материалов