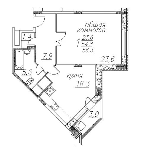
Жк полет застройщик