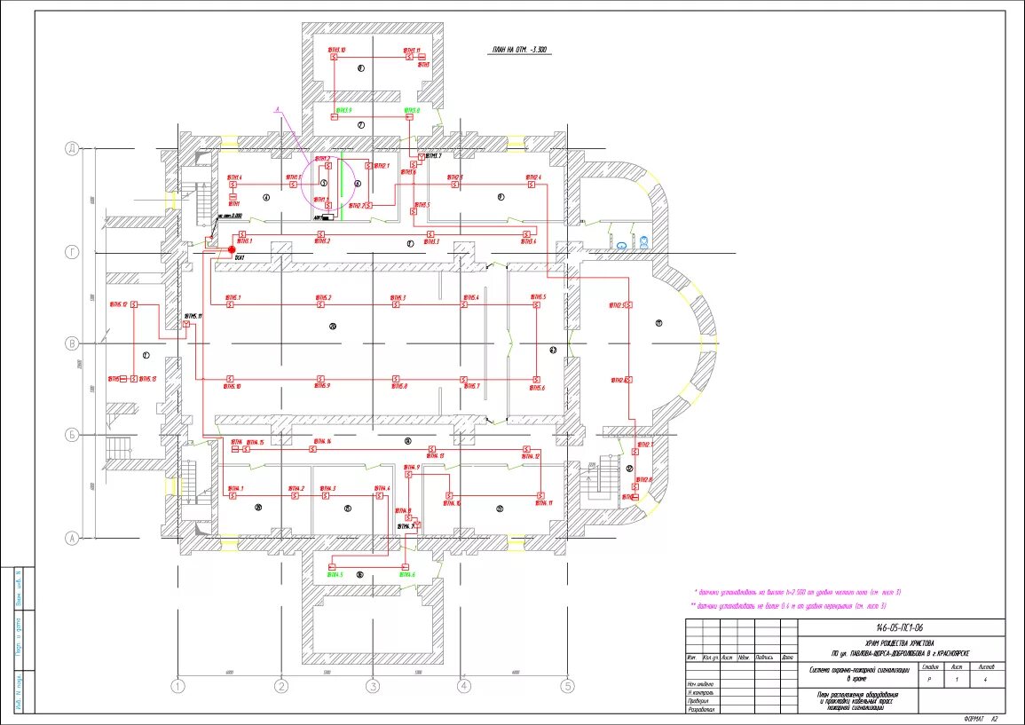
Зкпс