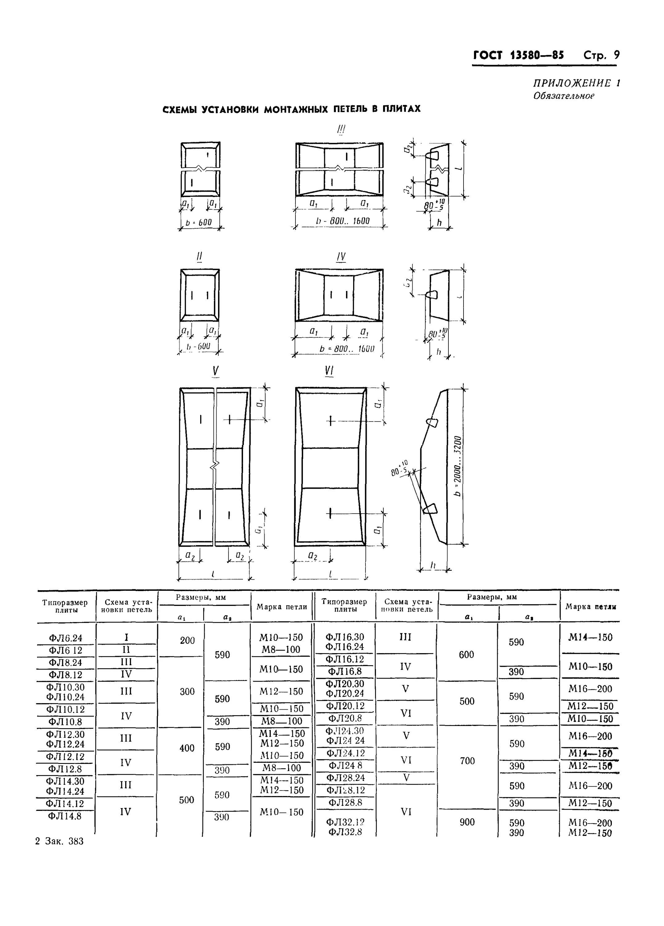
Фл обозначения